YEN NGHIA HOUSE | QUY COLLECTIVE
THÔNG TIN DỰ ÁN:
Yên Nghĩa House là công trình “nhà lô” 3 tầng 1 tum, xây dựng trên khu đất có hai mặt tiền trước – sau, tiếp giáp hai lối ngõ tại Hà Nội. Điểm chung của các công trình nhà lô nhỏ hẹp điển hình này là đặc thù hình dáng hẹp, dài và nằm sát nhau nên điều kiện sống thường khó đáp ứng tốt. Dù sở hữu hai mặt thoáng, nhưng mặt cắt ngõ hẹp và khoảng cách nhà đối diện gần khiến khả năng lấy sáng tự nhiên bị hạn chế.
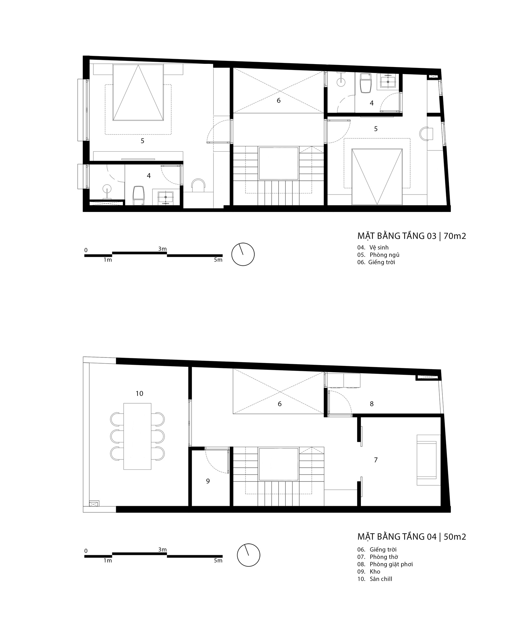
Vì vậy, Nhóm kiến trúc sư đã bố trí không gian thông tầng tại khoang giữa nhà từ đó tạo ra 3 khoảng không trước, giữa, sau nhà để tối ưu khả năng thông gió và lấy ánh sáng tự nhiên.
Tầng 1 được tổ chức như một không gian sinh hoạt chung, ưu tiên sự thông thoáng và liền mạch. Cầu thang được đẩy về một phía để hạn chế chia cắt, tạo sự kết nối giữa phòng khách và bếp; hai không gian được phân tách ước lệ bằng cao độ sàn khác nhau.
Ở các tầng trên, lõi giao thông được đưa về trung tâm nhằm tối ưu diện tích cho các phòng ngủ theo yêu cầu của chủ đầu tư.
Tổng thể công trình sử dụng tông màu sáng kết hợp giếng trời rộng và vật liệu có chất cảm nhẹ nhàng giúp mang lại cảm giác thoải mái và dễ chịu cho một ngôi nhà phố 70m² trong ngõ nhỏ.