X HOUSE | COTE ARCHITECTS

THÔNG TIN DỰ ÁN:

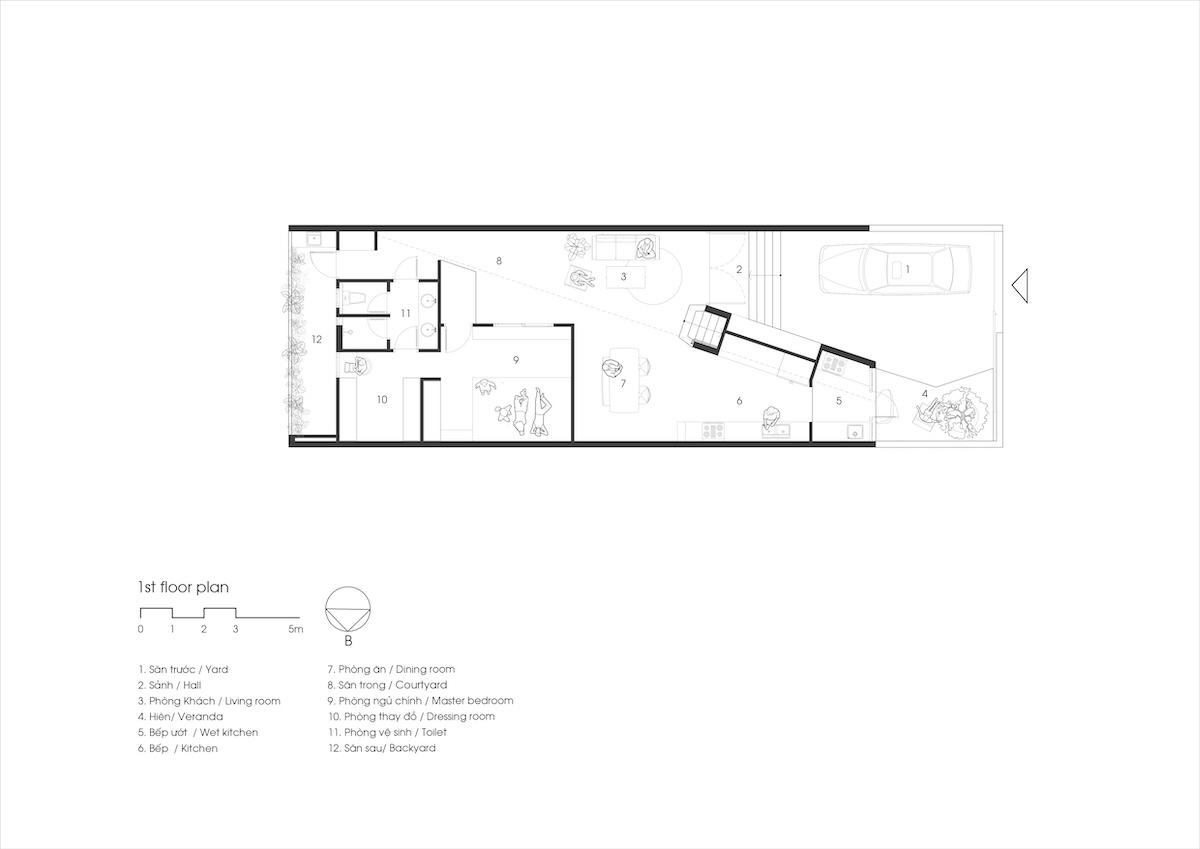
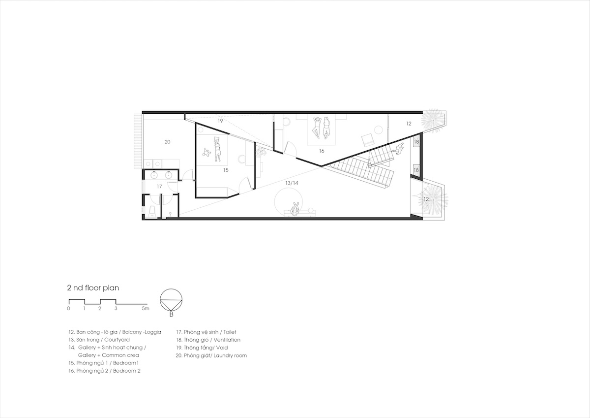
X House được thiết kế cho một gia đình trẻ bốn người, tọa lạc tại khu vực phía Nam Vỹ Dạ, thành phố Huế – nơi đô thị phát triển nhanh với mật độ cao và nhiều hoạt động thương mại xung quanh. Trước bối cảnh đó, công trình được đặt ra như một không gian sống tĩnh lặng và cân bằng, đủ để con người tách khỏi nhịp sống ồn ào, tìm lại sự tập trung, riêng tư và kết nối với thiên nhiên. Thay vì theo đuổi hình thức phô diễn, X House hướng đến chất lượng không gian, hiệu quả chi phí và giá trị bền vững lâu dài.

Ý tưởng thiết kế của X House xoay quanh mối quan hệ giữa không gian “Đặc” và “Rỗng”. Trên khu đất hình chữ nhật, công trình được cấu trúc từ hai khối tam giác đối xứng, chồng xếp và dịch chuyển theo trục định vị chữ X – yếu tố tạo nên tên gọi và bản sắc không gian của ngôi nhà. Trục chữ X không chỉ là giải pháp hình học mà còn tổ chức giao thông, dẫn hướng thị giác và kết nối các khoảng “Rỗng” xuyên suốt giữa các tầng. Các khối “Đặc” chứa những không gian khép kín như phòng ngủ, học tập và khu phụ trợ, trong khi các khoảng “Rỗng” gồm phòng khách, bếp – ăn, sân trong, gallery và thư viện trở thành nơi sinh hoạt, giao tiếp và chiêm nghiệm của gia đình.

Giải pháp kiến trúc được triển khai thông qua khái niệm “nhà trong nhà”. Toàn bộ không gian được bao bọc bởi một khối hộp bê tông liền khối, đóng vai trò như lớp vỏ bảo vệ trước khí hậu nhiệt đới nóng ẩm và bức xạ mạnh từ hướng Tây – hướng chính của công trình. Các ô mở và khoảng rỗng được tính toán cẩn trọng nhằm kiểm soát ánh sáng tự nhiên, thông gió và riêng tư. Bề mặt bê tông thô mộc được giữ nguyên như một “chất liệu sống”, nơi ánh sáng, bóng đổ và sự chuyển dịch của thời gian được cảm nhận rõ nét. Không gian được định hình bởi sự tương tác tinh tế giữa vật liệu và ánh sáng, mang lại chiều sâu thị giác và cảm xúc lắng đọng.

Giá trị nổi bật của X House nằm ở sự tiết chế có chủ ý. Thay vì tối đa hóa diện tích xây dựng, công trình chủ động giảm các không gian khép kín để nhường chỗ cho những khoảng “Rỗng” giàu giá trị sử dụng. Chính sự lựa chọn này giúp nâng cao chất lượng môi trường sống, đảm bảo ánh sáng tự nhiên, thông gió hiệu quả và các không gian linh hoạt cho sinh hoạt, thưởng thức nghệ thuật và kết nối gia đình. Việc sử dụng kết cấu bê tông liền khối, hạn chế hoàn thiện thừa và ưu tiên giải pháp thụ động giúp tối ưu chi phí đầu tư, giảm năng lượng vận hành và nâng cao tuổi thọ công trình. X House là minh chứng cho một cách tiếp cận kiến trúc bền vững, nơi “bớt đi” về hình thức và diện tích để “được thêm” về chất lượng sống và sự cân bằng lâu dài.