VILLA M | KIẾN TRÚC MAISON CL.OU
THÔNG TIN DỰ ÁN:
- Tên công trình: Villa M
- Địa chỉ: Dương Kinh – TP. Hải Phòng
- Diện tích: 784m2
- Năm hoàn thành: 2023
Tất cả bắt đầu từ sự thu hút về 1 vị trí đất đặc biệt, 1 khu đất xa trung tâm thành phố, ngay gần 1 con sông. Trong những lần ghé thăm, chủ đầu tư đã bị thu hút bởi nơi này, từ quang cảnh, không khí, sự yên tĩnh và quả thật nơi đây có 1 nét quyến rũ đích thực.
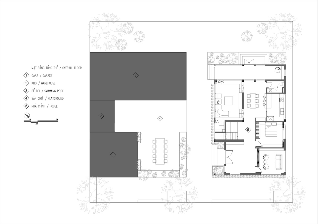
Dự án được bắt đầu từ việc hình thành 1 khối nhà chính, để rồi sau đó khi có khu đất thứ 2 ngay cạnh khu đất cũ, bài toán được đặt ra là kết nối khối nhà đang trong quá trình thi công cùng với 2 khối nhà phụ trợ trên nền đất mới.
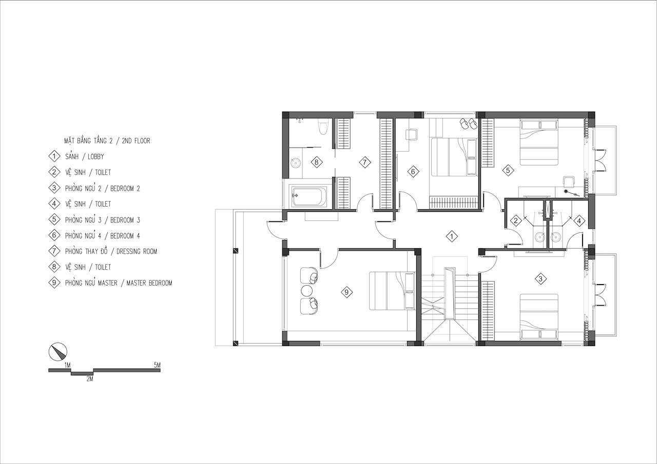
Các cấu trúc hiện tại bao gồm 1 ngôi nhà lớn thống trị khu đất, 2 khối nhà phụ trợ nhỏ hơn, kín đáo hơn bao lấy phần cảnh quan sân vườn ở giữa.
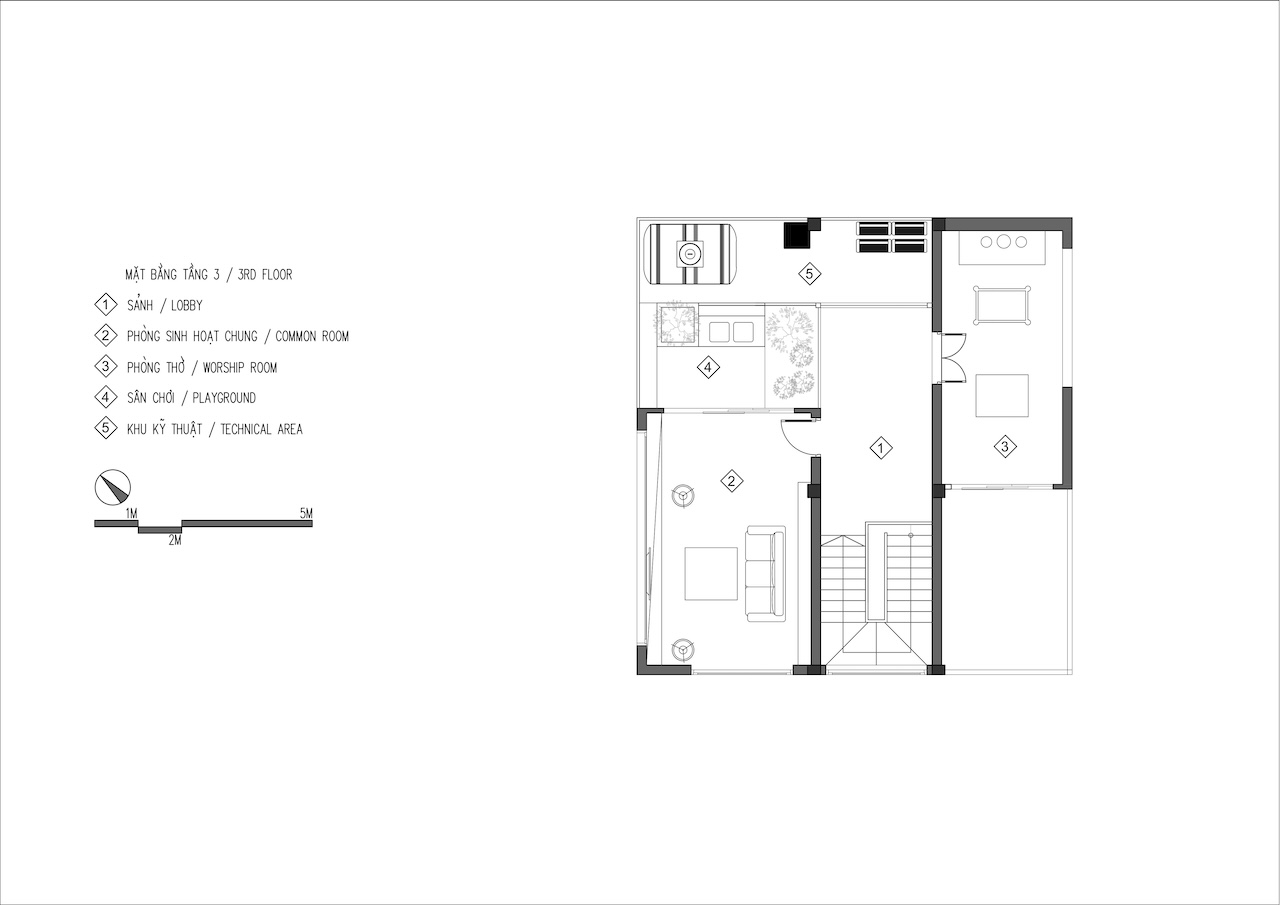
Ngôi nhà chính mang đến 1 cảm giác trang nhã và đương đại. Toàn bộ cấu trúc xung quanh được làm sống động bởi 1 khu vực sân vườn với cây cối, bàn trà. Xung quanh là 2 khối nhà phụ trợ bao gồm gara, kho, khu vực bể bơi và 1 khu vực nhỏ trên mái đặt 1 chiếc kính viễn vọng phục vụ cho những ngày ngắm sao trên bầu trời. Phần sân vườn này như 1 quảng trường thu nhỏ, nơi mà gia đình có thể tụ họp và tận hưởng không khí trong lành của nơi này.
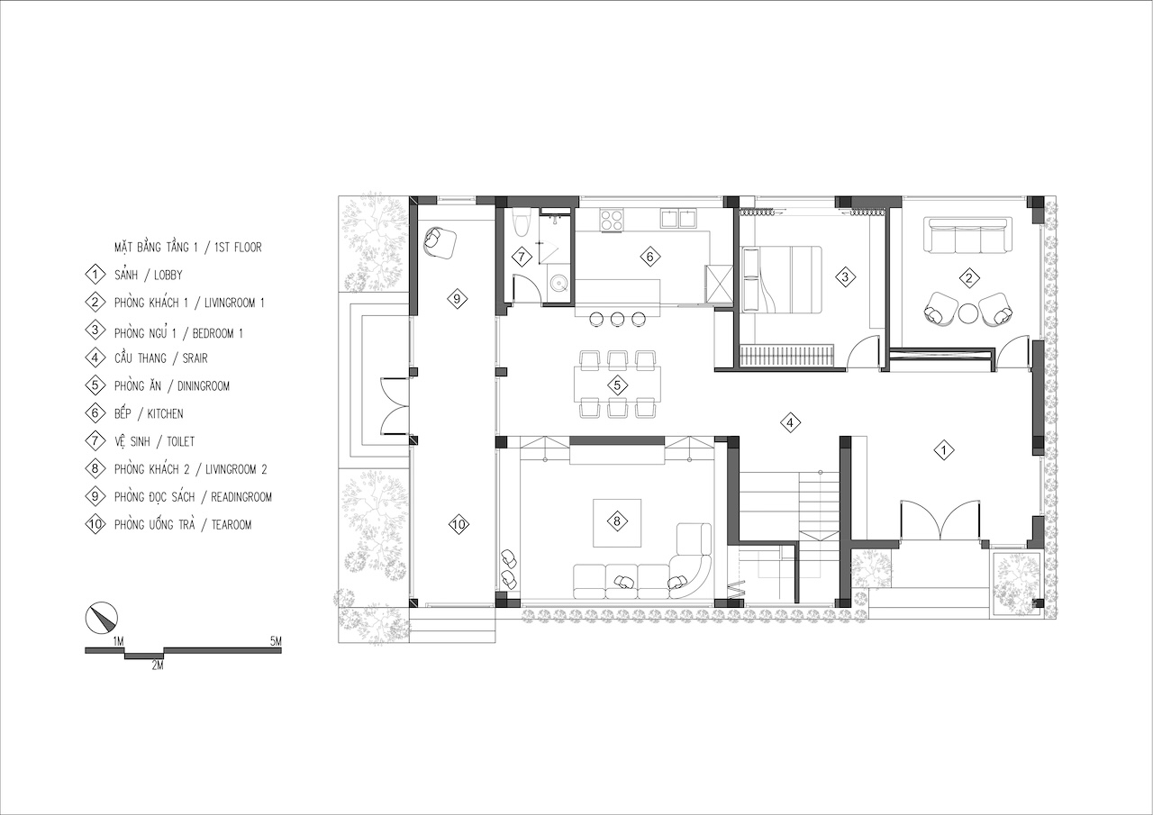
Phần tiền sảnh giống như bộ mặt của ngôi nhà, là nơi chuyển tiếp giữa không gian bên ngoài và không gian bên trong nhà.
– Bức tranh đặt giữa tiền sảnh cũng giống như một món trang sức bông tai, dây chuyền làm tôn lên vẻ đẹp của khuôn mặt. Bức tranh mà chúng tôi sắp xếp lên cũng mang hình tượng một chiếc dây chuyền, vừa để tôn lên vẻ đẹp của tiền sảnh, vừa là một điểm nhấn mới lạ tạo ấn tượng cho khách
Phòng khách khu vực tiếp khách được hạ thấp hơn so với khu vực phòng ăn, đồng thời cửa sổ được khai thác tối đa cho phép gia chủ có một tầm nhìn hoàn hảo ra các không gian cảnh quan bên ngoài.
Việc thiết kế không gian nội thất với tông màu trầm đã tạo nên một không gian vô cùng ấm cúng và gần gũi với bất cứ một ai đến thăm. Lò sưởi bằng đá làm riêng theo yêu cầu là một trong những phần tạo nên cá tính riêng biệt cho phòng khách này.
Để tạo ra một cái nhìn mới về khu vực phòng ăn, những chiếc ghế bọc da và bàn ăn epoxy đã được sử dụng. Cách phối các màu trầm với các nét chấm phá đến từ vật liệu epoxy, phần bàn console và một vài chi tiết đinh tán khiến cho cho không gian phòng ăn thêm sang trọng và vô cùng nổi bật.