TRƯỜNG LIÊN CẤP QUỐC TẾ AIKO | IDESIGN VIỆT NAM

THÔNG TIN DỰ ÁN: 

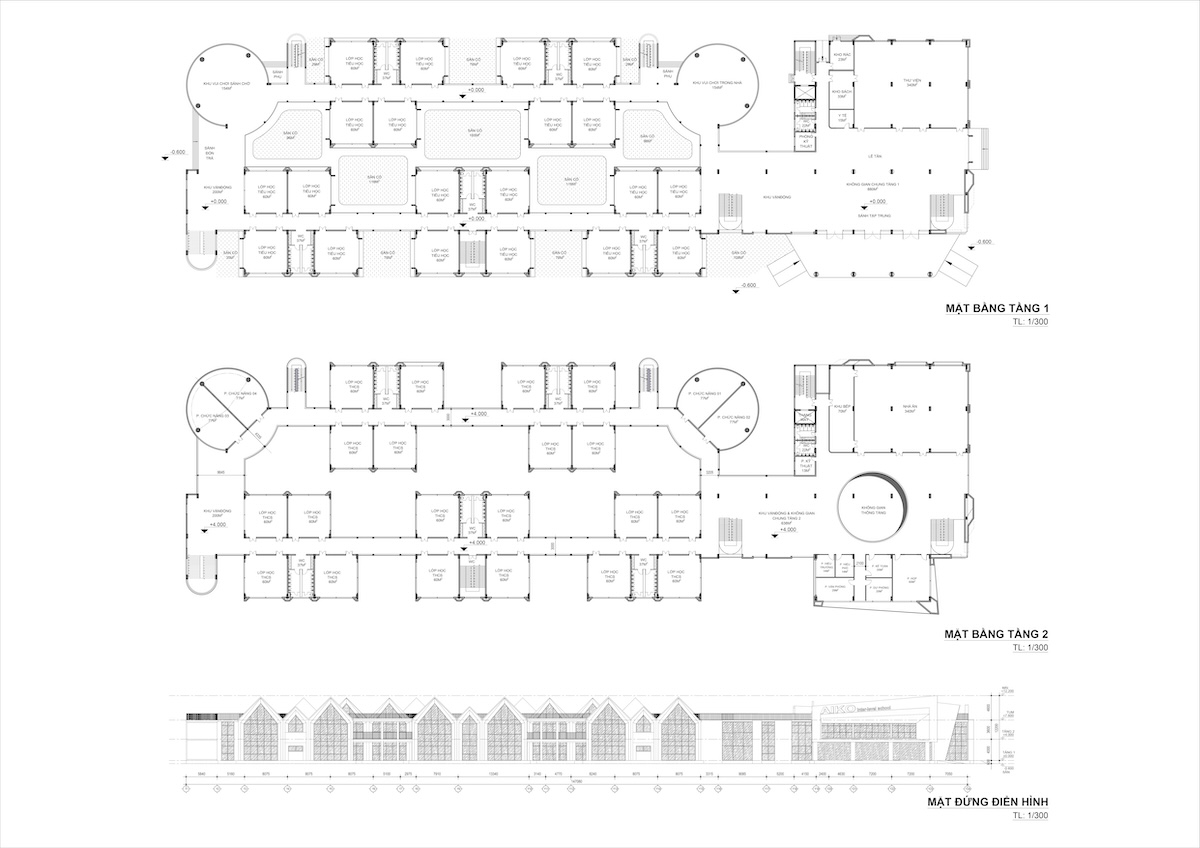
  • Tên công trình: Trường liên cấp quốc tế AIKO
  • Địa điểm: Ninh Bình
  • Tổng diện tích đất: 13.275 m²
  • Diện tích đất xây dựng công trình: 5.313 m²
  • Mật độ xây dựng: 40%
  • Diện tích đất giao thông – hạ tầng kỹ thuật: 3.910 m²
  • Diện tích đất cây xanh – sân chơi: 4.052 m²
  • Đơn vị thiết kế: iDesign Việt Nam

Dự án Trường Liên cấp Quốc tế AIKO được hình thành từ ý tưởng “Kiến tạo không gian học đường như một khu nghỉ dưỡng”, nơi trường học không chỉ phục vụ việc học mà còn mang lại cảm giác thư thái, gần gũi thiên nhiên và khơi gợi cảm hứng sáng tạo. AIKO được định hướng như một resort giáo dục – hiện đại, sang trọng nhưng bền vững và giàu bản sắc.

Ngôn ngữ kiến trúc của công trình là sự kết hợp các khối hiện đại, lấy cảm hứng từ hình thái bungalow của các khu resort, với quy mô thấp tầng, mái dốc và không gian mở, tạo cảm giác gần gũi thiên nhiên, thư thái và thân thiện, đồng thời vẫn đảm bảo tính hiện đại và quốc tế cho môi trường giáo dục. Vật liệu truyền thống như gạch đỏ, gỗ, tạo sự cân bằng giữa tinh thần quốc tế và địa phương. Không gian mở và cửa kính lớn giúp đón sáng, thông gió tự nhiên và tăng kết nối trong & ngoài. Mảng xanh được bố trí xuyên suốt từ sân vườn, hành lang đến các tầng, tạo môi trường học tập trong lành.

Mặt bằng được tổ chức linh hoạt: khu đón tiếp mang dáng dấp lobby resort; các khối lớp học hướng ra mảng xanh, tràn ngập ánh sáng; khu chức năng chung và sân trong trở thành không gian giao lưu, trải nghiệm và thư giãn cho học sinh.

Các giải pháp thiết kế của dự án tập trung vào tính bền vững và trải nghiệm người dùng. Hệ lam che nắng được bố trí hợp lý nhằm giảm bức xạ nhiệt trực tiếp, đồng thời mở ra khả năng tích hợp năng lượng tái tạo trong tương lai. Nguồn nước được quản lý hiệu quả thông qua việc thu gom và tái sử dụng nước mưa cho tưới cây, kết hợp các thiết bị tiết kiệm nước và cảnh quan ưu tiên cây bản địa.

Vật liệu sử dụng chủ yếu là các vật liệu bền vững, thân thiện môi trường như gạch nung, gỗ, với giải pháp hoàn thiện có độ bền cao và ít bảo trì. Không gian học tập được tổ chức thông thoáng, giàu ánh sáng tự nhiên và mảng xanh, góp phần cải thiện vi khí hậu và chất lượng không khí trong nhà. Tổng thể khu vực được quy hoạch với mật độ xây dựng hợp lý, tăng cường không gian mở nhằm giảm hiệu ứng đảo nhiệt. Trên hết, dự án đề cao tính sáng kiến, trong đó kiến trúc không chỉ là không gian sử dụng mà còn trở thành công cụ giáo dục trực quan, giúp học sinh hình thành và trải nghiệm lối sống xanh, bền vững ngay từ những năm đầu đời.