TL HOUSE | DTA DESIGNSTUDIO
THÔNG TIN DỰ ÁN:
- Tên công trình: TL House
- Địa chỉ: Khu dân cư ven sông Vàm Sát, Lý Nhơn, Cần Giờ, TPHCM
- Đơn vị thiết kế: DTA DESIGNSTUDIO
- KTS chủ trì và nhóm thiết kế: Đỗ Văn Thiệp, Nguyễn Thị Kim Thao
- Năm thiết kế: 2025
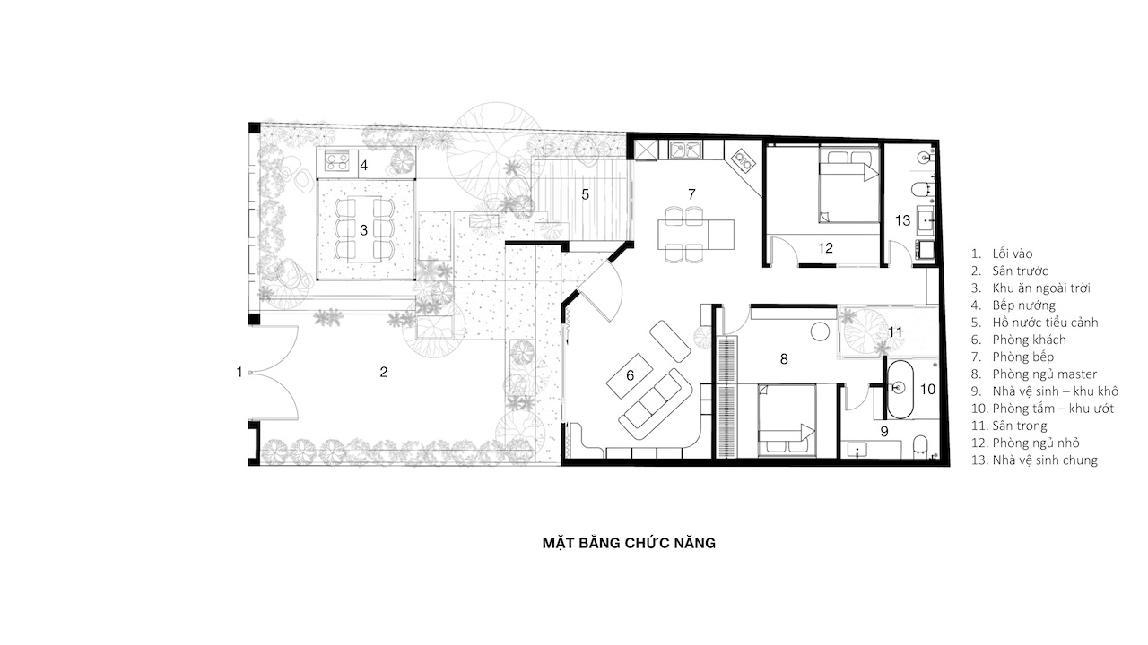
Giữa nhịp sống hối hả, TL House hiện lên như một nốt trầm tĩnh tại bên dòng sông Vàm Sát – Cần Giờ, nơi kiến trúc không còn là những khối bê tông tách biệt mà trở thành sợi dây kết nối con người với hơi thở của thiên nhiên. Điểm nhấn đặc sắc nhất của công trình chính là khu sân vườn rộng mở được bao bọc bởi hệ hàng rào kính trong suốt. Giải pháp thiết kế này không chỉ đảm bảo sự an toàn mà còn xóa nhòa ranh giới thị giác, tạo cảm giác không gian kéo dài vô tận và hòa quyện trực tiếp vào dòng sông hiền hòa phía trước.
Ngôn ngữ kiến trúc của TL House tập trung vào sự tinh tế và tính bền vững. Bước qua khoảng sân ngập tràn hơi thở mát lành của mặt nước và cây cỏ, không gian nội thất mở ra với sự tối giản nhưng đầy tiện nghi. Các khu vực riêng tư như phòng ngủ và hệ thống vệ sinh hiện đại được định hướng nhìn ra khoảng sân trong – một giải pháp kiến trúc thông minh nhằm duy trì sự riêng tư tuyệt đối mà vẫn giữ được tinh thần “mở” xuyên suốt.
Khoảng sân trong đóng vai trò như một “lá phổi xanh”, giúp điều hòa vi khí hậu và dẫn dắt ánh sáng tự nhiên len lỏi vào những góc khuất nhất của ngôi nhà. Tại TL House, mỗi chi tiết từ hệ vách kính lớn đến cách sắp đặt không gian đều hướng tới mục tiêu duy nhất: giúp gia chủ tận hưởng trọn vẹn vẻ đẹp của thiên nhiên ngay cả khi đang ở trong những không gian khép kín. Đây chính là biểu mẫu điển hình cho xu hướng kiến trúc nghỉ dưỡng đương đại: rành mạch, linh hoạt và tràn đầy sức sống.