THE TIMBER FOLD | 1618 DESIGN STUDIO

THÔNG TIN DỰ ÁN:

THE TIMBER FOLD – CÂU CHUYỆN GIỮA QUÁ KHỨ VÀ HIỆN ĐẠI TRONG TỪNG “NẾP GẤP GỖ”

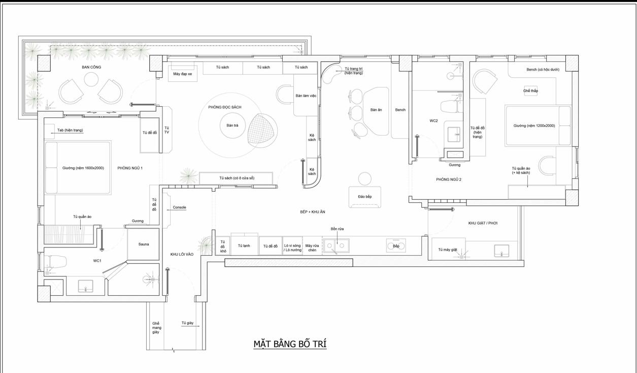
Tọa lạc tại khu Nam Viên – Phú Mỹ Hưng, căn hộ 130m² là dự án cải tạo toàn diện do 1618 Design Studio thực hiện. Tựa như một cuốn sách thô, chưa có lời tựa hoàn chỉnh, không gian cũ được gấp lại và mở ra theo một chương mới. Từ hiện trạng ban đầu gồm ba phòng ngủ và hai khu vệ sinh, căn hộ được tái cấu trúc thành hai phòng ngủ và một phòng đa chức năng, tạo nên sự kết nối linh hoạt và phù hợp hơn với nhịp sống hiện đại.

The Timber Fold bắt nguồn từ hình ảnh những nếp gấp thô sơ của một cuốn sách cũ. Những nếp gấp ấy không hoàn hảo, nhưng mang theo dấu vết của bàn tay, của thói quen và của thời gian. Tương tự, gỗ trong dự án không chỉ là vật liệu hoàn thiện, mà trở thành ngôn ngữ của ký ức, âm thầm dẫn dắt cảm xúc và trở thành sợi chỉ đỏ kết nối toàn bộ câu chuyện thiết kế.

Ngay khi bước qua ngưỡng cửa, cuốn sách không gian được mở ra bằng một nhịp chậm. Ánh sáng len qua các lớp kính màu, rơi xuống nền gỗ xương cá và dẫn lối bằng những đường cong mềm mại. Bàn console nhỏ cùng các khung ảnh treo tường hiện diện như những dòng chữ đầu tiên, chưa trọn vẹn nhưng đủ gợi mở, nơi quá khứ và hiện tại bắt đầu đối thoại trong tinh thần Mid-Century Modern.

Trước cải tạo, khu bếp bị bó hẹp và tách biệt như một trang sách bị gập kín. Việc tháo bỏ bức tường ngăn không chỉ nhằm mở rộng không gian, mà giống như mở bung một nếp gấp cũ, để ánh sáng, chuyển động và sinh hoạt gia đình chảy xuyên suốt. Tông gỗ ấm, sắc vàng dịu của hệ tủ và mảng tường kem tạo nên cảm giác thân thuộc, biến bếp và bàn ăn thành nơi những ký ức đời thường được viết tiếp qua từng bữa cơm sum vầy.

Từ một phòng ngủ nhỏ, không gian được chuyển thành phòng đa chức năng,một trang sách có thể đọc theo nhiều cách. Khi là góc làm việc, lúc là nơi đọc sách, khi cả gia đình quây quần trò chuyện, căn phòng mở ra và gấp lại tùy theo nhu cầu sử dụng. Hệ tủ gỗ ốp kính, ghế tựa lưng và chi tiết tay nắm đồng gợi nhắc tinh thần Mid-Century Modern, nhưng được tiết chế để nhường chỗ cho trải nghiệm sống.

Phòng ngủ master là nơi cuốn sách được gấp sâu hơn. Tông gỗ chủ đạo kết hợp mảng tường vàng tạo cảm giác bao bọc và thư thái. Phòng tắm liền kề cùng không gian xông hơi nhỏ trở thành những nếp gấp kín đáo, dành riêng cho việc nghỉ ngơi và tái tạo năng lượng sau nhịp sống thường nhật.

Phòng ngủ mẹ là trang sách mang nhiều dấu vết thời gian nhất. Chiếc tủ gỗ cũ được giữ lại, cùng những món đồ trang trí bên trong đã gắn bó suốt nhiều năm, như những nếp gấp quen thuộc nhắc nhớ về quá khứ. Không gian lặng lẽ gìn giữ ký ức, để người sống bên trong có thể sống chậm ở lại với những thói quen thân quen và những hồi ức đời thường.

The Timber Fold được hoàn thiện như cách khép lại một cuốn sách đã trọn vẹn. Những nếp gấp gỗ không còn chỉ là chi tiết thiết kế, mà trở thành nơi quá khứ và hiện tại cùng tồn tại, để gia chủ tìm thấy sự an yên và tiếp tục sống cùng câu chuyện của chính mình.