THE LODGE VILLA | MM++ ARCHITECTS

THÔNG TIN DỰ ÁN:

  • Thiết kế: MM++ Architects
  • KTS chủ trì: Phạm Thị Mỹ An
  • Địa điểm: Bình Tân, Thành phố Hồ Chí Minh
  • Năm thiết kế: 2023
  • Năm hoàn thành: 2024
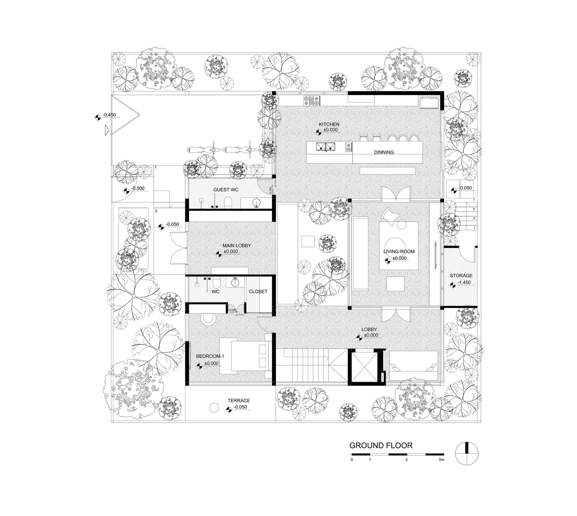
  • Diện tích đất: 400 m2
  • Diện tích xây dựng: 215 m2
  • Hình ảnh: Hiroyuki Oki

The Lodge Villa là một công trình đem lại những cảm xúc nhẹ nhàng, hòa trộn giữa lối kiến trúc thô mộc cùng hình ảnh thiên nhiên, khai triển một không gian đề cao tính nghỉ dưỡng.

Mặt tiền của công trình được bố trí hệ lam gỗ linh hoạt đóng – mở dựa theo nhu cầu sử dụng, đem lại các ấn tượng khác nhau khi nhìn từ bên ngoài. Cũng chính nhờ hệ lam này, ngôi nhà cũng hạn chế hấp thụ nhiệt độ từ môi trường một cách tối đa, chắt lọc nguồn ánh sáng chiếu vào không gian nội thất, tăng tính riêng tư mà không hề tạo sự bó hẹp khó chịu như những công trình phố khác.

Không gian bên trong là những hình khối kiến trúc được sắp xếp một cách hợp lý. Từng khu vực được kết nối với nhau bởi thiên nhiên. Ngay giữa trung tâm ngôi nhà, kiến trúc sư đã bố trí một khu vườn tươi mát. Khoảng xanh như điểm nhấn cân bằng tổng hoà, liên kết các không gian chức năng từ trước ra sau. Tất cả các khối công năng đều có tầm nhìn mở hướng ra mảng xanh thông qua hệ cửa kính trong suốt. Từ đó tạo ra sự tương tác giữa con người với thiên nhiên, giữa con người với con người.

Công trình có lợi thế về quỹ đất với diện tích 400m2, được phân bổ thành 1 trệt 2 lầu. Nhờ vậy, tất cả các phòng công năng đều được thiết kế thành những khoảng không gian riêng tư, rộng, thoáng. The Lodge Villa cũng được bố trí thêm các phòng tiện ích khác như phòng xông hơi, phòng karaoke, bồn tắm kín ngoài trời, … Tất cả đều chú trọng đến trải nghiệm sống phong phú của mọi thành viên, khơi dậy trọn vẹn mọi giác quan cảm nhận.

Tính nghỉ dưỡng được gia chủ chú trọng rất nhiều, lồng ghép vào các không gian sử dụng. Đội ngũ thiết kế đã kiến tạo nên một khu vực bồn tắm ngoài trời thư giãn, dàn lam gỗ cùng cây xanh kết hợp trở thành một bức tường che chắn tự nhiên, không làm mất đi tính riêng tư mà vẫn đảm bảo được sự hài hòa cùng thiên nhiên.

Ngôi nhà được ôm trọn cái nắng tự nhiên nhờ vào phần mái kính sáng tạo. Kiến trúc sư khéo léo phân bổ hợp lý giữa mái ngói cùng mái kính, giúp cho ngôi nhà được hấp thụ đủ ánh sáng mà không bị quá tải nhiệt. Đây cũng chính là nguồn sáng lý tưởng nuôi dưỡng cho hệ sinh thái trong nhà, giúp cho từng lớp cây xanh được tắm nắng đầy đủ.

Đội ngũ thiết kế đã gắn kết công trình với yếu tố tự nhiên thông qua các không gian kết nối, dùng những chi tiết khai phá và mở rộng hợp lý đóng vai trò trọng tâm, mang lại những trải nghiệm thú vị khi được đắm chìm cùng thiên nhiên. Từ trong chính ngôi nhà của mình, các thành viên có thể dễ dàng cảm nhận được hơi thở của lá cây, tiếng gió mát mẻ trong lành cùng với không khí thoáng đãng bình yên.