SWISS NAM RESIDENCE | AM ARCHITECTS

THÔNG TIN DỰ ÁN: 

Bài toán đặt ra khi tiếp cận khu đất là mong muốn của chủ đầu tư – một người trở về từ Thụy Sĩ – về một ngôi nhà mang phong cách tối giản, tiết kiệm năng lượng, đồng thời vẫn đạt được sự sang trọng và tinh tế trong từng chi tiết hoàn thiện

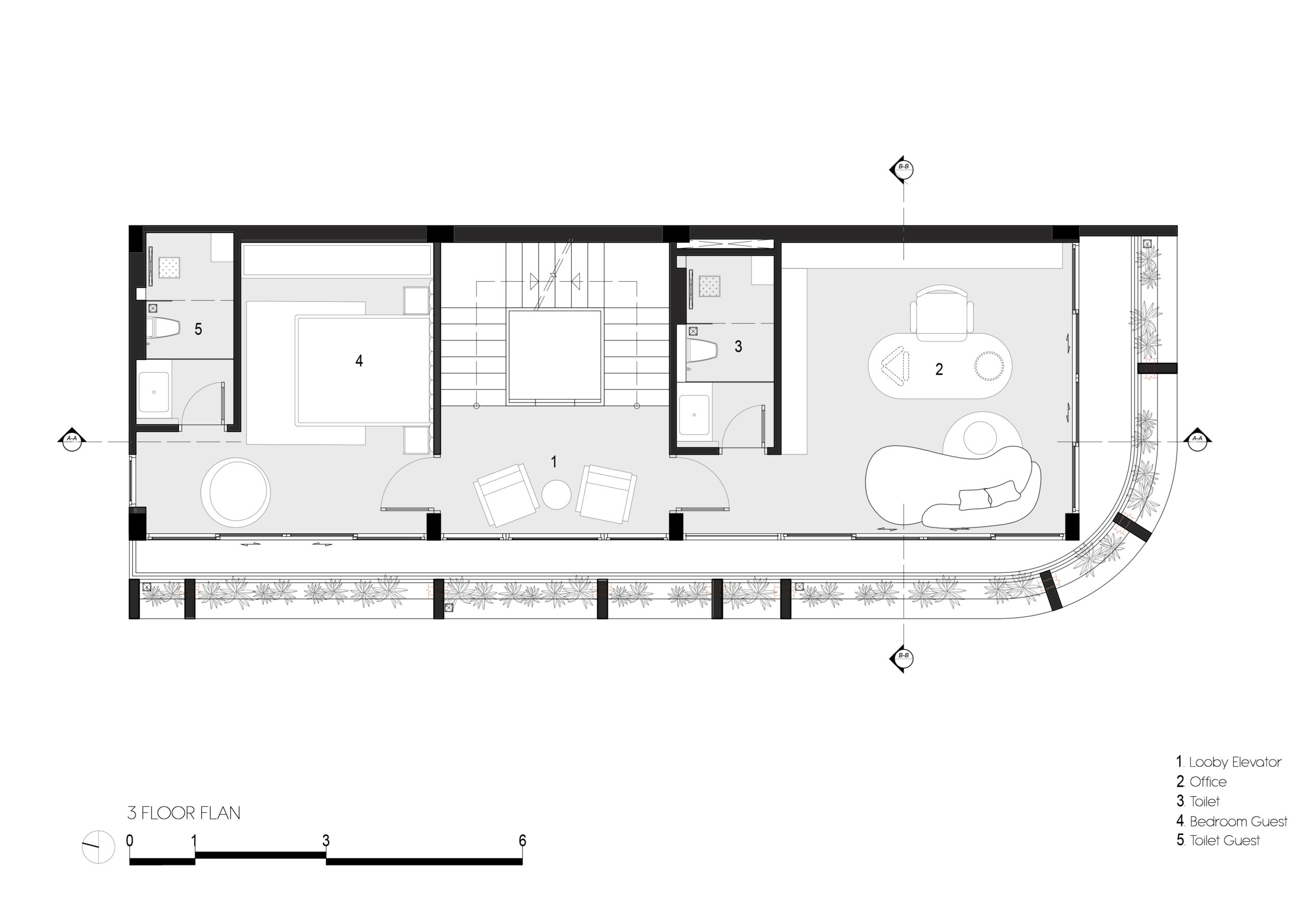
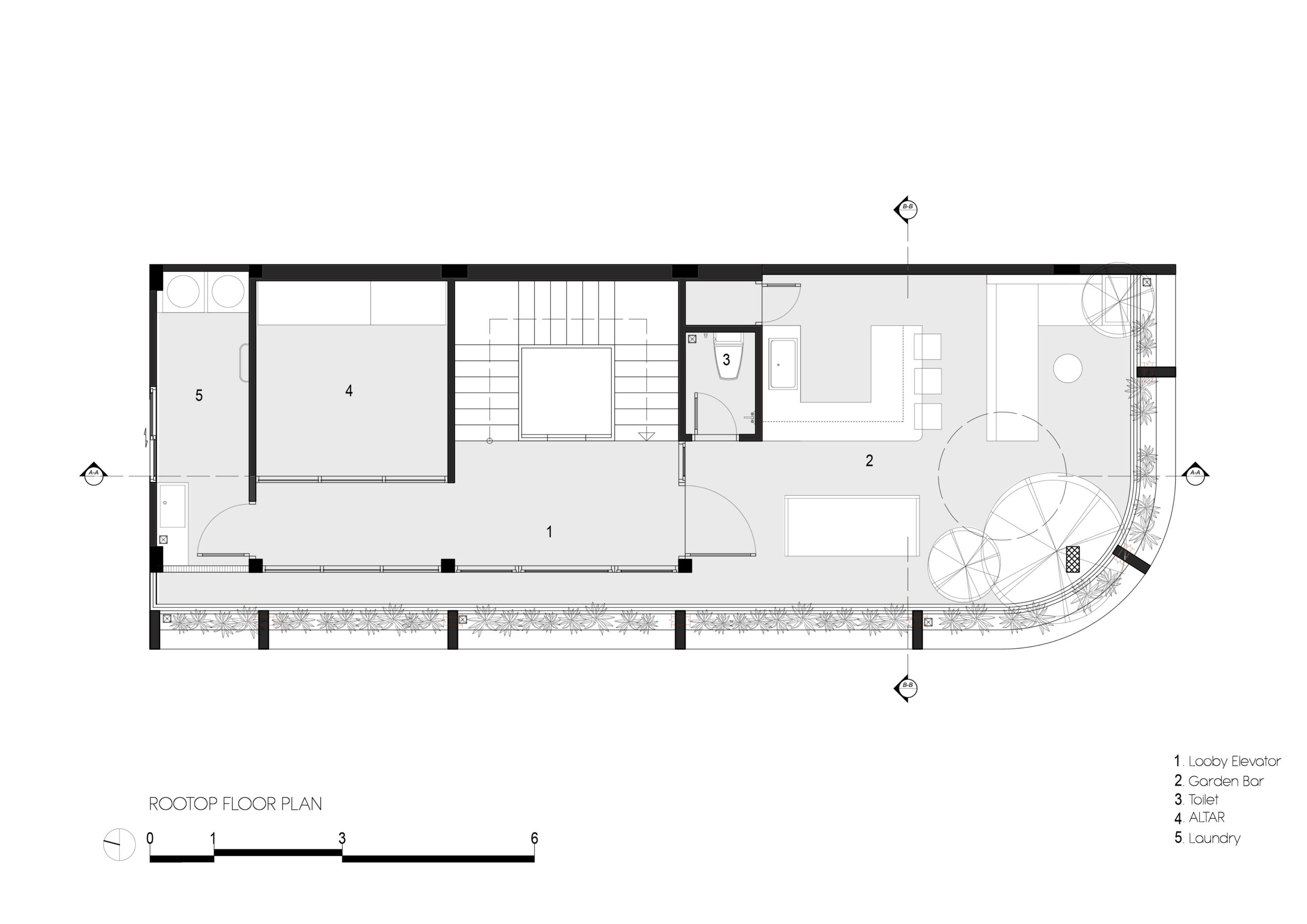
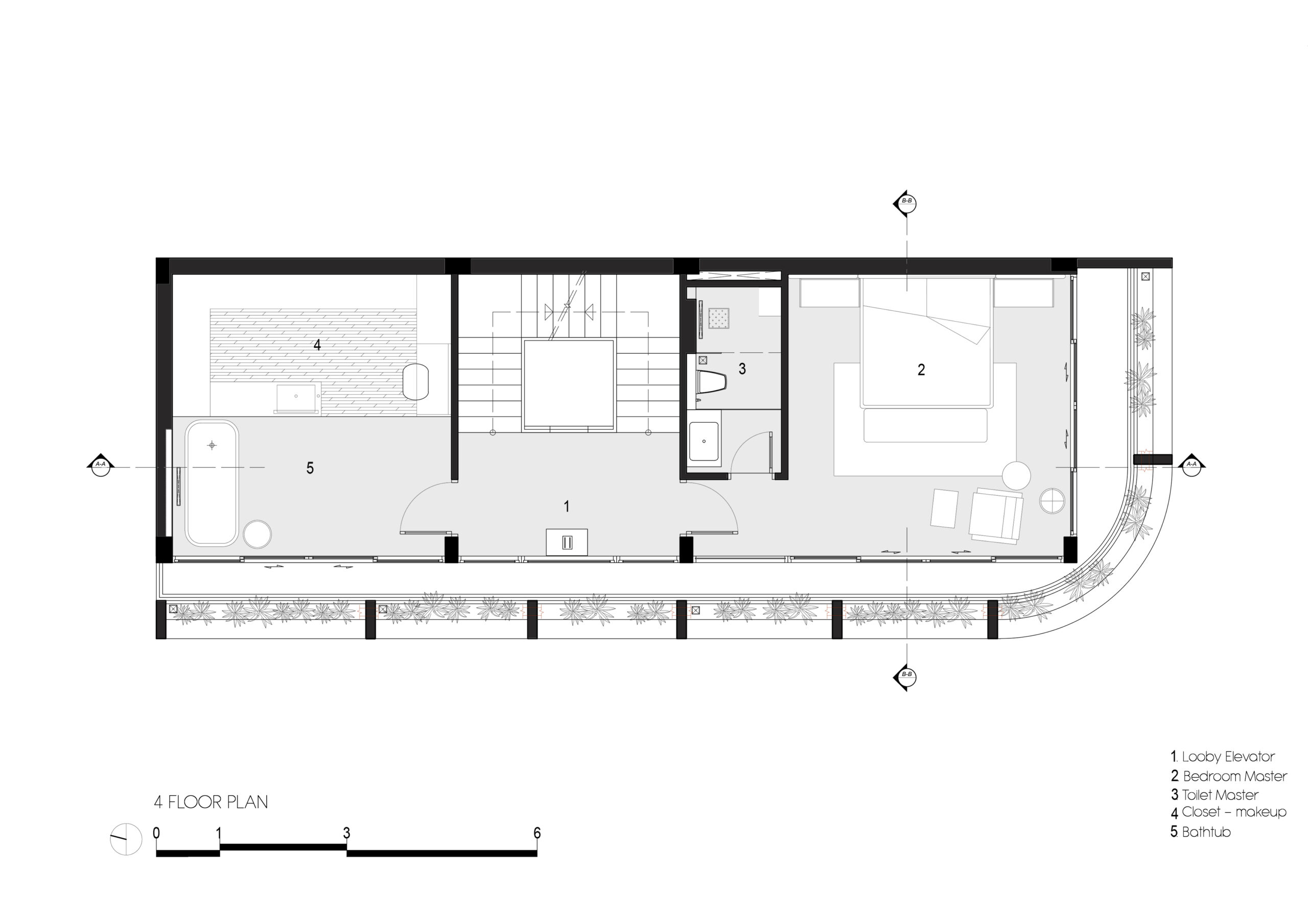
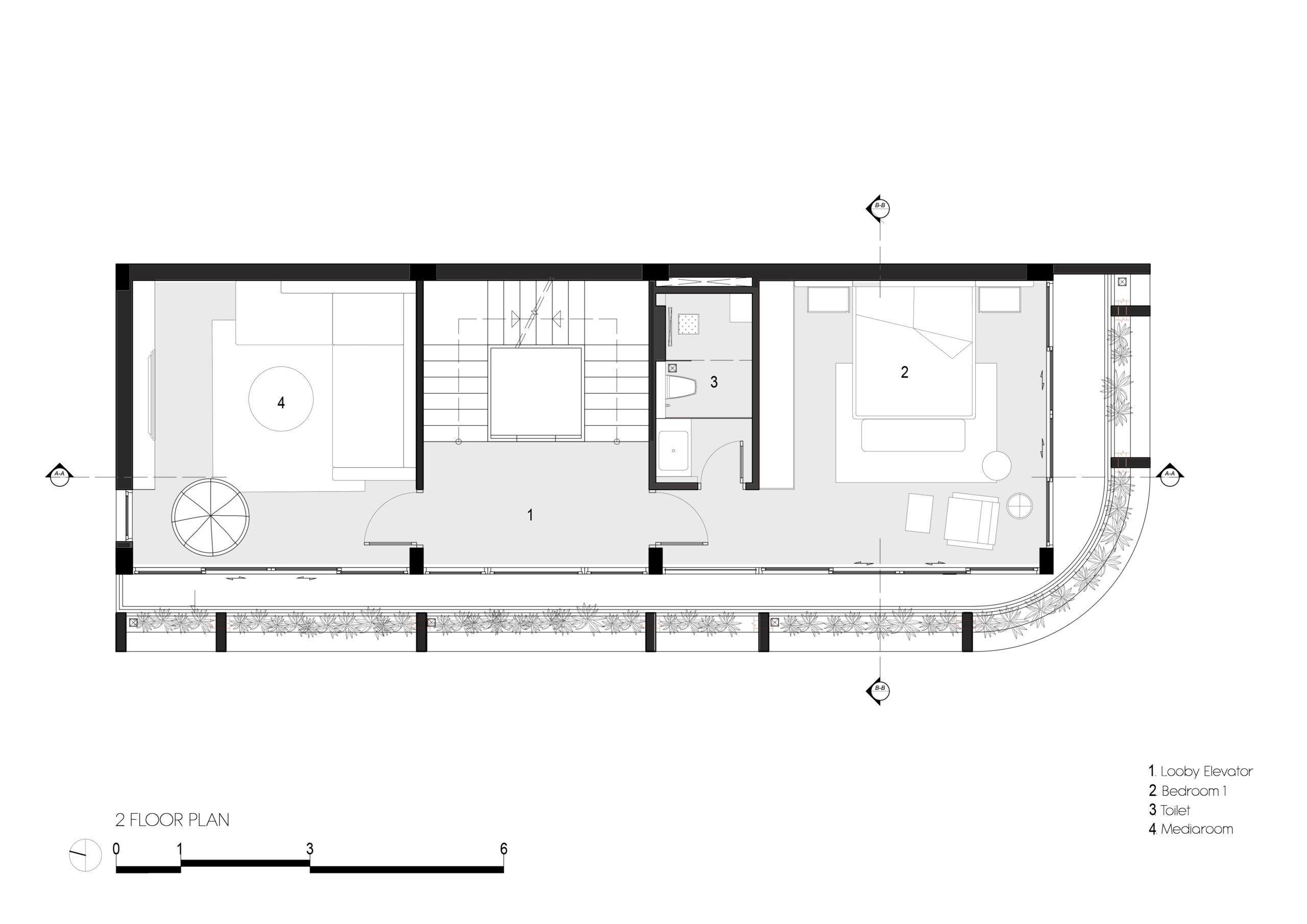
Trên một diện tích khiêm tốn, để đảm bảo đầy đủ các không gian sinh hoạt chức năng, các phòng trong ngôi nhà được tổ chức chồng lớp theo chiều đứng.

Hệ cửa kính và các mảng tường kính nhiều lớp giúp giảm tiếng ồn. Quan trọng hơn, hệ lam đứng, các mành sắt di động kết hợp cùng cây xanh góp phần tăng cường sự riêng tư và giảm thiểu tiếng ồn từ đường phố vào các không gian sinh hoạt bên trong.

Xuyên suốt không gian nội thất, các vật liệu như đá và gỗ được sử dụng, tất cả đều được chế tác tỉ mỉ bởi các nghệ nhân địa phương với sự chăm chút cao độ đến từng chi tiết.

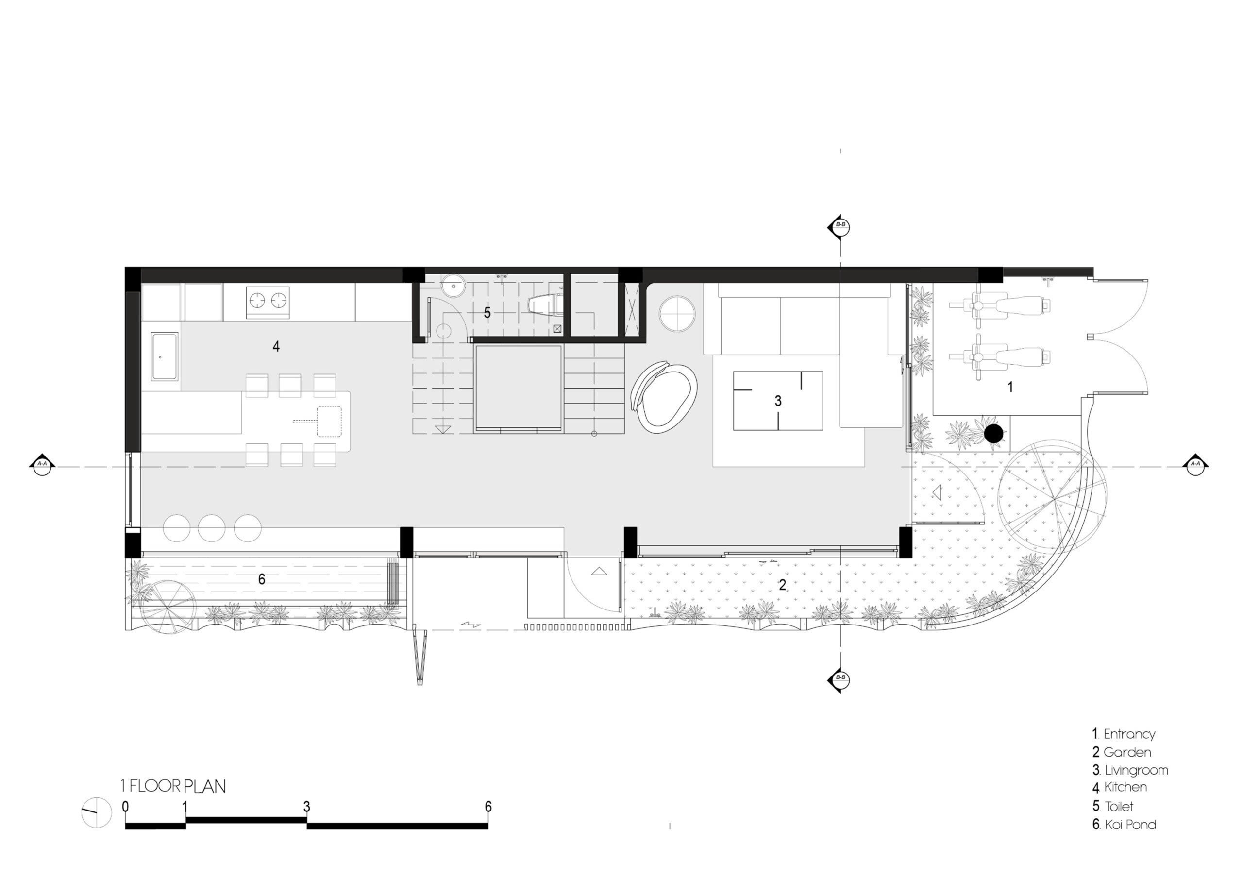
Phòng khách và bếp được bố trí ở tầng trệt, bao quanh bởi cây xanh nhiệt đới nhằm đảm bảo sự riêng tư nhưng vẫn cho phép ánh sáng tự nhiên tràn vào. Hai không gian này được thiết kế liên thông để những làn gió biển mát có thể lưu thông, mang theo hơi nóng thoát ra khỏi khu vực bếp. Hồ cá được đặt về phía Tây nhằm tạo độ ẩm và giảm bớt tác động của luồng gió Tây Nam khô nóng.