PR HOUSE | PLUS IDEA STUDIO

THÔNG TIN DỰ ÁN

Dự án PR House – Hidden yard

Công trình là một nhà ở dân dụng nằm tại khu dân cư mật độ cao ở thành phố Phan Rang – Tháp Chàm, khu vực nổi bật với khí hậu nắng nóng và gió biển.

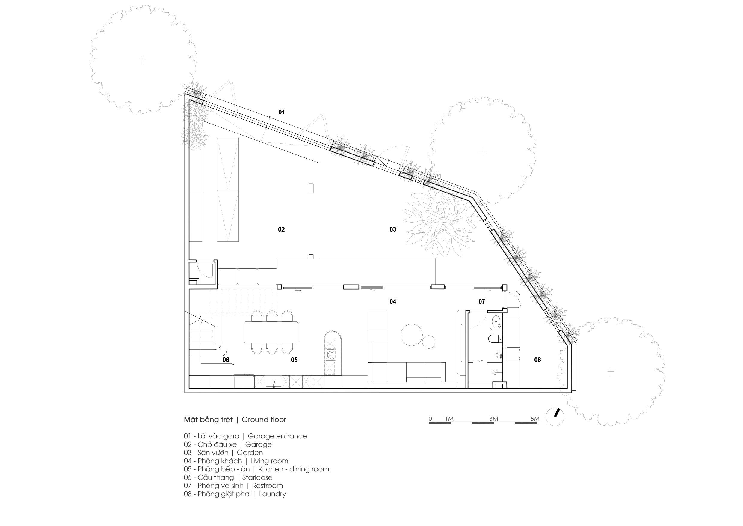
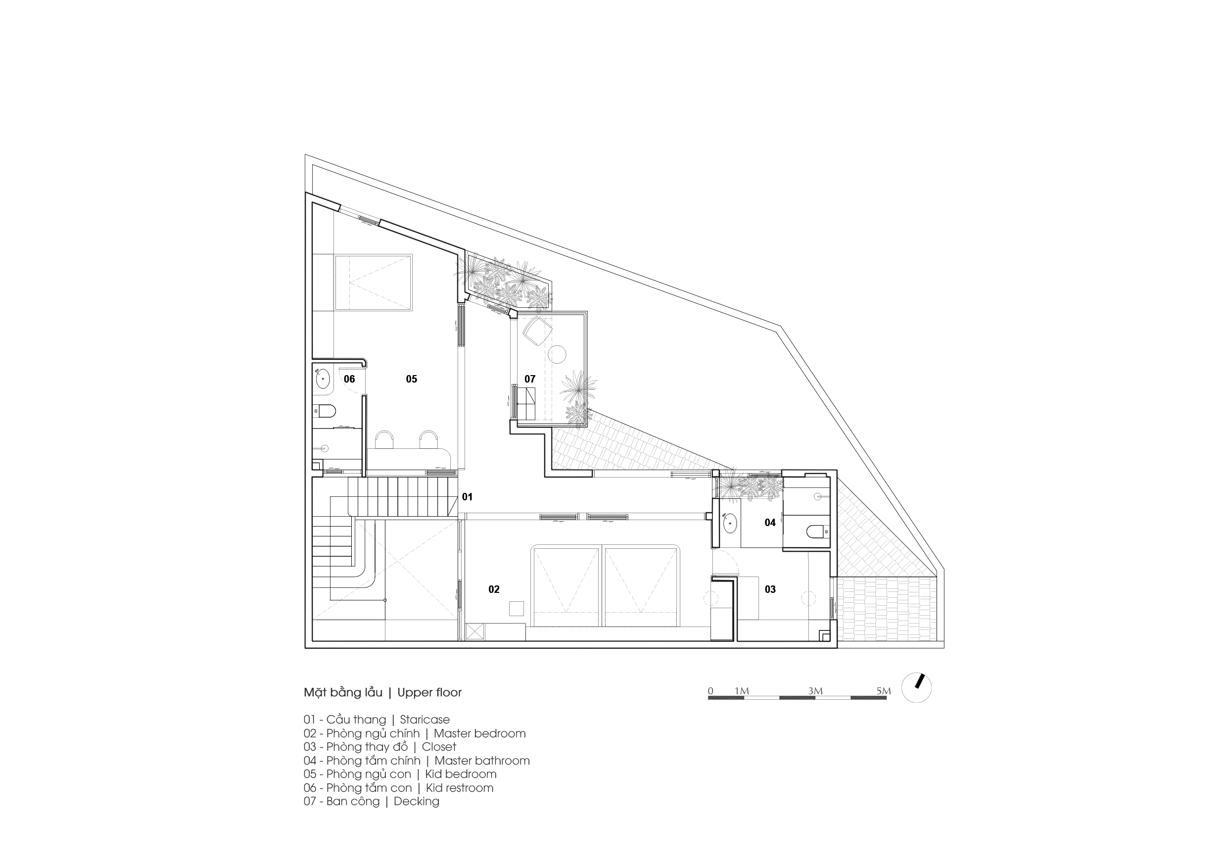
Điểm nổi bật của ngôi nhà là khả năng kết nối và tương tác giữa các thành viên trong gia đình. Tầng trệt được thiết kế mở, không có vách ngăn cố định giữa phòng khách, bếp và khu sinh hoạt chung, khuyến khích sự tương tác và giao tiếp thường xuyên. Tầng lầu bố trí các không gian ngủ liên thông thông qua hệ thống vách cửa di động linh hoạt, cho phép điều chỉnh sự riêng tư theo nhu cầu sử dụng, thay vì các phòng ngủ khép kín.

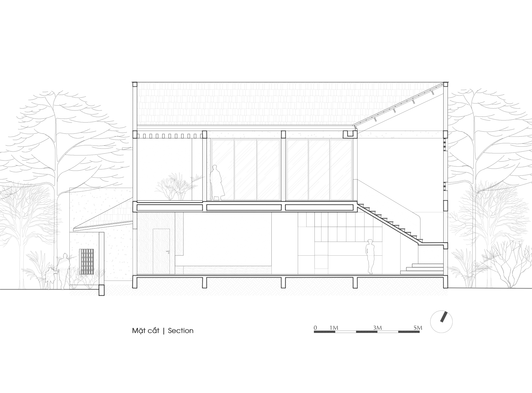
Công trình với mái hiên rộng, lam chắn nắng và cây xanh bố trí hợp lý tạo thành các khoảng đệm giúp giảm nhiệt và nhận chiếu sáng tự nhiên gián tiếp hiệu quả. Công trình sử dụng tường dày, vừa giảm tiếng ồn đô thị và còn là 1 lớp cách nhiệt với nắng nóng địa phương.

Công trình không sử dụng gạch để hoàn thiện như thường thấy, mà đề cao betong thô cho cả trần và sàn. Chúng tôi mang tới giải pháp sàn bê tông 2 lớp được neo vào nhau. Các phần kỹ thuật âm sàn được tinh chỉnh tỷ mỉ. Chiếu sáng trong công trình là ánh sáng ấm và chiếu điểm, giúp không gian nổi bật và ấm cúng hơn.

Ngôi nhà không chỉ đáp ứng nhu cầu sống của gia đình mà còn tạo nên môi trường sống bền vững, hài hòa, góp phần tăng cường sự gắn kết tình thân giữa các thành viên và gắn kết với thiên nhiên.