ORIGAMI HOUSE| DA VÀNG STUDIO

THÔNG TIN DỰ ÁN

  • Tên dự án: Origami House
  • Thực hiện: DA VÀNG studio
  • Website văn phòng: www.davang.com.vn
  • Email liên hệ: [email protected]
  • Địa điểm văn phòng: TP. Hồ Chí Minh, Việt Nam
  • Năm hoàn thành: 2024
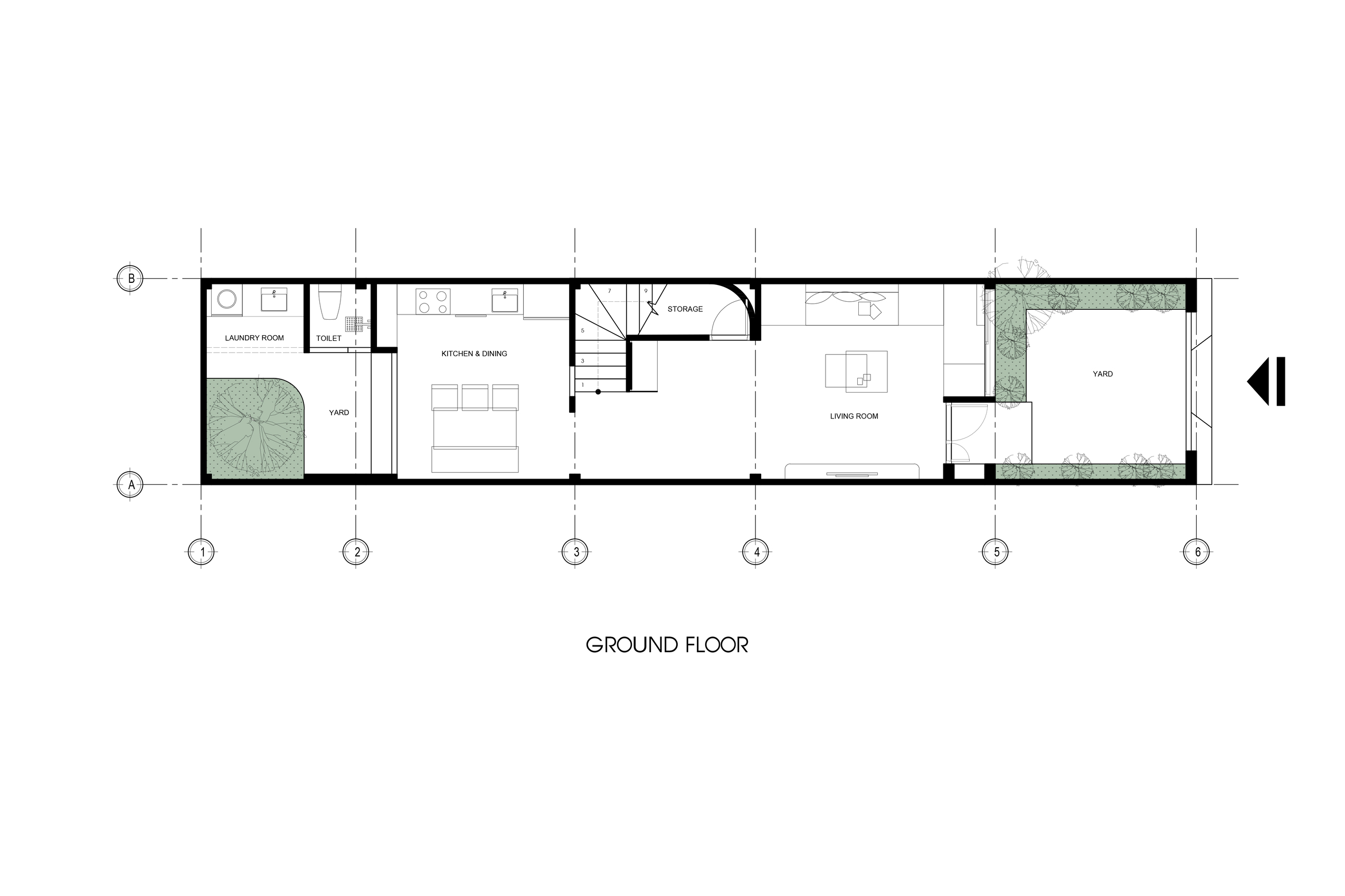
  • Tổng diện tích xây dựng (m²/ft²): 132 m²
  • Địa điểm dự án: TP. Hồ Chí Minh, Việt Nam
  • Loại hình công trình: Nhà ở
  • Kiến trúc sư chủ trì: Nguyễn Đắc Anh Quân
  • Email kiến trúc sư chủ trì: [email protected]
  • Nhiếp ảnh gia: MinqBui
  • Website nhiếp ảnh gia: www.mingbui.com
  • Email nhiếp ảnh gia: [email protected]

Mặt tiền ngôi nhà lấy cảm hứng từ những nếp gấp origami, tạo nên một hình khối đầy cuốn hút. Thiết kế góc cạnh kết hợp với gạch đá chống nhiệt giúp công trình thích nghi tốt với khí hậu nóng của Việt Nam, mang lại không gian bên trong mát mẻ và thoải mái.

Ngôi nhà được thiết kế theo phong cách mộc mạc – tối giản, sử dụng vật liệu thô để tạo cảm giác ấm áp và thư giãn cho gia chủ.

Giếng trời được tạo hình độc đáo, vừa dẫn sáng tự nhiên vừa tăng cường thông gió – một giải pháp tối ưu cho nhà ống trong vùng khí hậu nhiệt đới.

Cổng vào ốp đá tự nhiên gợi hình ảnh một pháo đài ẩn mình giữa lòng Sài Gòn.

Origami House là sự hòa quyện hoàn hảo giữa mặt tiền ốp đá, hình khối gấp nếp, ánh sáng – thông gió tự nhiên và nội thất chất liệu thô mộc — một hướng tiếp cận kiến trúc lý tưởng cho nhà ở nhiệt đới.”