NICK'S HOUSE | NHÀ VIỆT ARC & CONS

THÔNG TIN VỀ CÔNG TRÌNH

  • Tên công trình: Nick’s House
  • Địa chỉ: Đường Trần Phước, phường Tam Kỳ, thành phố Đà Nẵng
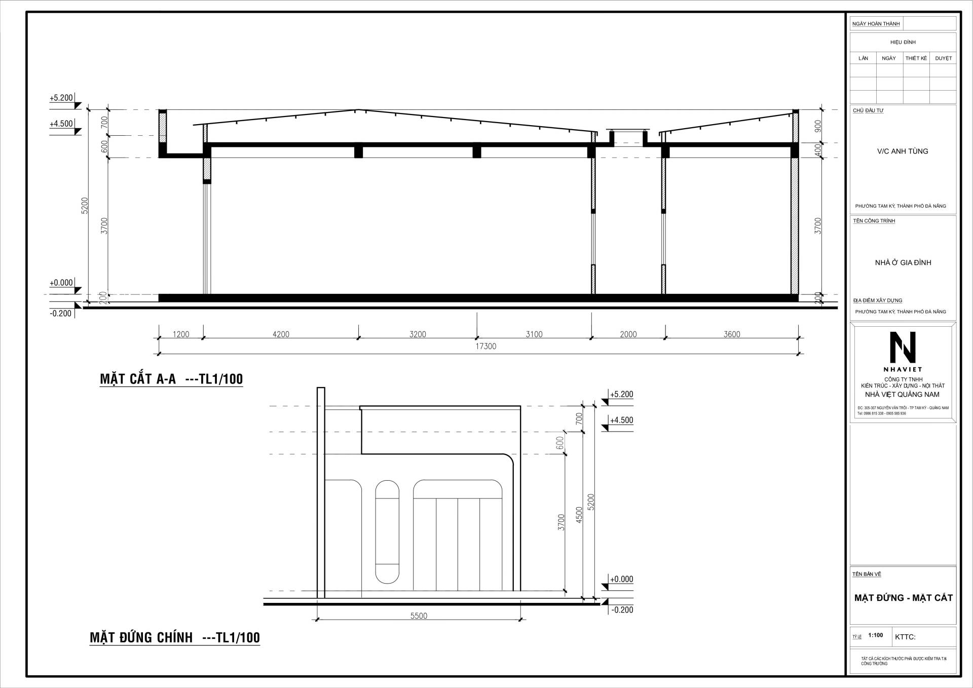
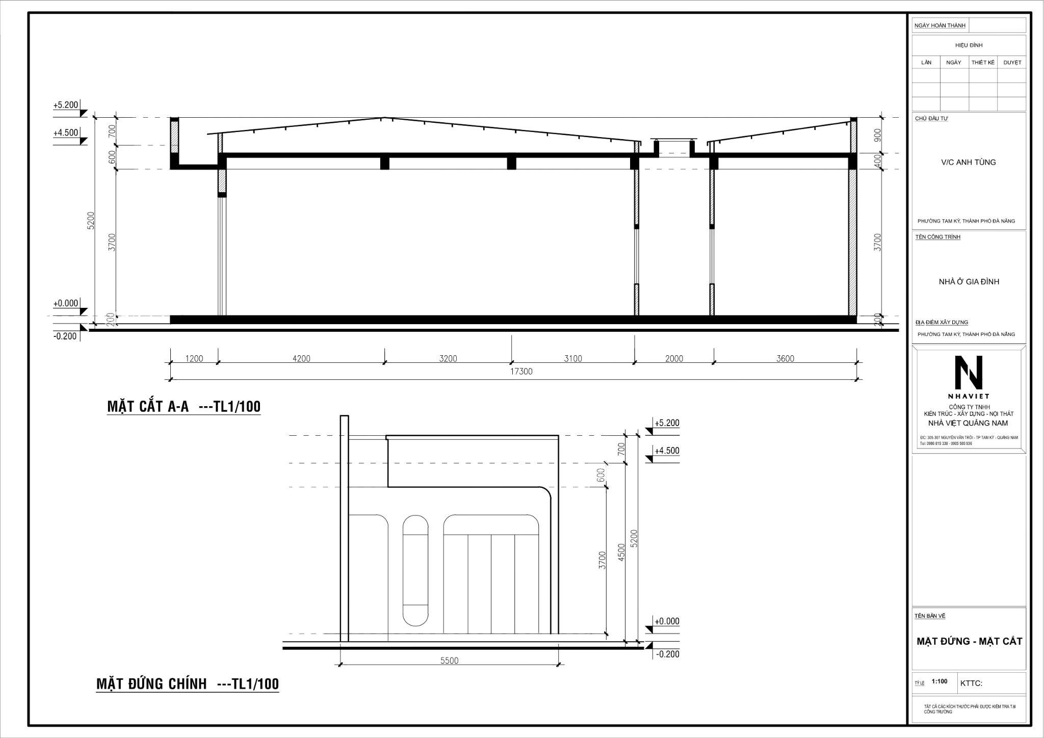
  • Diện tích khu đất: 5,5m × 15m
  • KTS chủ trì: Nguyễn Thanh Tùng
  • Đơn vị thiết kế: NHÀ VIỆT Arc & Cons
  • Đơn vị thi công: NHÀ VIỆT Arc & Cons

Trên lô đất có diện tích giới hạn chỉ 5.5m x 15m, chủ nhà yêu cầu phải tạo nên một không gian sống đầy đủ công năng cho gia đình trẻ, đồng thời đảm bảo thông thoáng, ánh sáng và tính kết nối với thiên nhiên. Kiến trúc sư chọn giải pháp bố trí không gian theo trục dọc mở, loại bỏ tối đa các vách tường ngăn cứng để tạo sự liền mạch và cảm giác rộng rãi hơn cho ngôi nhà.

Phần mặt tiền có đường cong bo tròn ở khối chính trông khá mềm mại, kết hợp với các mảng vuông vức tạo nên một tổng thể thị giác vừa vững chãi vừa uyển chuyển. Thiết kế kết hợp kiểu này sẽ cho ra một kiểu mặt tiền khác biệt nhưng không phá vỡ ngữ cảnh nhà phố xung quanh.

Nick’s House sử dụng gam màu chủ đạo trắng và be nhằm mở rộng thị giác, tăng độ sáng tự nhiên và mang đến cảm giác tinh khiết, nhẹ nhàng. Bên cạnh đó, các điểm nhấn đen trên cửa kính khung thép cùng hệ lam gỗ tông vàng nhạt giúp tạo chiều sâu và sắc thái ấm áp cho tổng thể ngôi nhà.

Phòng khách – bếp – bàn ăn là một không gian liền mạch không vách ngăn. Hai phòng ngủ được tổ chức khéo léo ở hai đầu không gian riêng biệt để đảm bảo sự riêng tư. WC được đặt ở trung tâm, tiếp cận dễ dàng từ mọi khu vực, đảm bảo tối ưu lưu thông và sử dụng trong diện tích hạn chế.

Nội thất của Nick’s House đi theo tinh thần tối giản hiện đại, sử dụng vật liệu gỗ sáng màu là chủ yếu. Các chi tiết như sàn gỗ, hệ tủ liền khối, cửa vòm, kệ trang trí được thiết kế đồng bộ, tinh giản bề mặt, tạo nên một không gian sống gọn gàng, ấm cúng và không vô cảm.

Dù diện tích hạn chế, công trình vẫn tạo được những “khoảng thở” đắt giá nhờ cách tổ chức giếng trời và sân hông nhỏ, giúp lấy sáng, thông gió tự nhiên. Mảng xanh được bố trí xen kẽ ở các điểm nút không gian như bếp, phòng khách, ban công và sân hông, đóng vai trò cải thiện vi khí hậu và mang lại cảm giác thư giãn.

Ở Nick’s House, mỗi cm không gian đều được tính toán kỹ lưỡng, đáp ứng nhu cầu sinh hoạt hiện đại trong khi vẫn giữ được bản sắc thẩm mỹ và sự ấm áp cá nhân. Công trình cho thấy khả năng khai thác hiệu quả mô hình nhà ống nhỏ trong bối cảnh đô thị nén, để giới hạn không gian không trở thành rào cản sáng tạo, mà là chất xúc tác để kiến trúc sư đưa ra giải pháp chính xác, thấu hiểu và nhân văn.

Biên tập: Cẩm Luyến