NHÀ LĨNH NAM | TOOB STUDIO

THÔNG TIN DỰ ÁN

  • Tên công trình: Nhà Lĩnh Nam
  • Đơn vị thiết kế: TOOB Studio
  • Địa điểm: Hà Nội
  • KTS chủ trì: Nguyễn Hồng Quang
  • Nhóm thiết kế: Nguyễn Huyền Trang, Ngô Đức Minh Hiếu, Phạm Thành An
  • Năm thiết kế & hoàn thành: 2024

Nằm giữa những khối nhà cao tầng san sát, Lĩnh Nam House gây ấn tượng bởi cách xử lý không gian thông minh dù lối vào chỉ rộng vỏn vẹn 1,5m. Thay vì tận dụng tối đa chiều cao như các công trình xung quanh, ngôi nhà duy trì một cao độ khiêm tốn để tạo nên khoảng thở, hình thành một “thung lũng” yên tĩnh và tách biệt giữa lòng phố thị ồn ào.

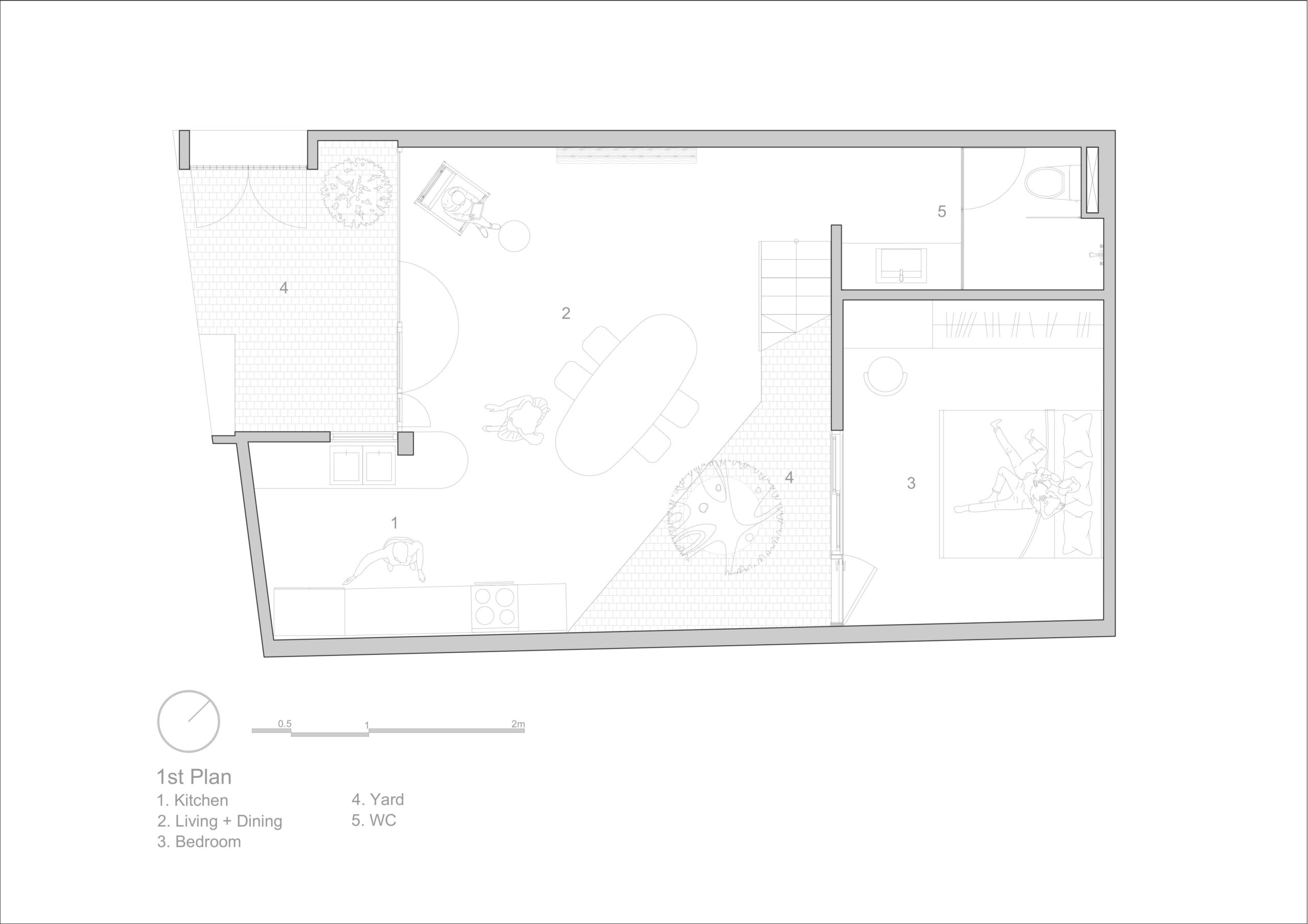
Điểm đặc biệt nhất của công trình chính là việc biến mái nhà thành một khoảng sân thượng rộng rãi. Trong khi các gia đình đô thị thường bỏ trống không gian này, Lĩnh Nam House lại biến nó thành sân chơi an toàn cho trẻ nhỏ và nơi thư giãn lý tưởng cho người lớn. Nhờ tận dụng các bức tường cao của nhà hàng xóm bao quanh, khu vực sân thượng vừa đón trọn nắng gió, vừa đảm bảo được sự riêng tư cần thiết cho những buổi sinh hoạt gia đình.

Bên trong ngôi nhà, ánh sáng tự nhiên được dẫn dắt khéo léo để len lỏi vào từng ngóc ngách. Các kiến trúc sư đã tính toán kỹ lưỡng để nắng lướt qua các bề mặt vật liệu, tạo nên những mảng sáng tối sinh động và ấm áp. Sự kết hợp giữa cấu trúc mở và cách điều phối ánh sáng biến ngôi nhà thành một không gian mang tính chiêm nghiệm, nơi mỗi bước chân, mỗi hoạt động thường nhật đều trở nên gần gũi với thiên nhiên.

Lĩnh Nam House là câu trả lời thực tế cho bài toán xây dựng trong ngõ sâu và hẹp. Công trình chứng minh rằng: chỉ cần sự sáng tạo và cách tiếp cận nhân văn, chúng ta hoàn toàn có thể tạo ra một tổ ấm tiện nghi, giàu cảm xúc ngay trong những điều kiện diện tích khó khăn nhất.