MK HOUSE | ATELIER 12

THÔNG TIN DỰ ÁN

  • Tên công trình: MK House
  • Đơn vị thiết kế: Atelier 12
  • Địa điểm: Ngọc Thuỵ, Long Biên, Hà Nội
  • KTS chủ trì: Đặng Đức Việt
  • Năm thiết kế & hoàn thành: 2022

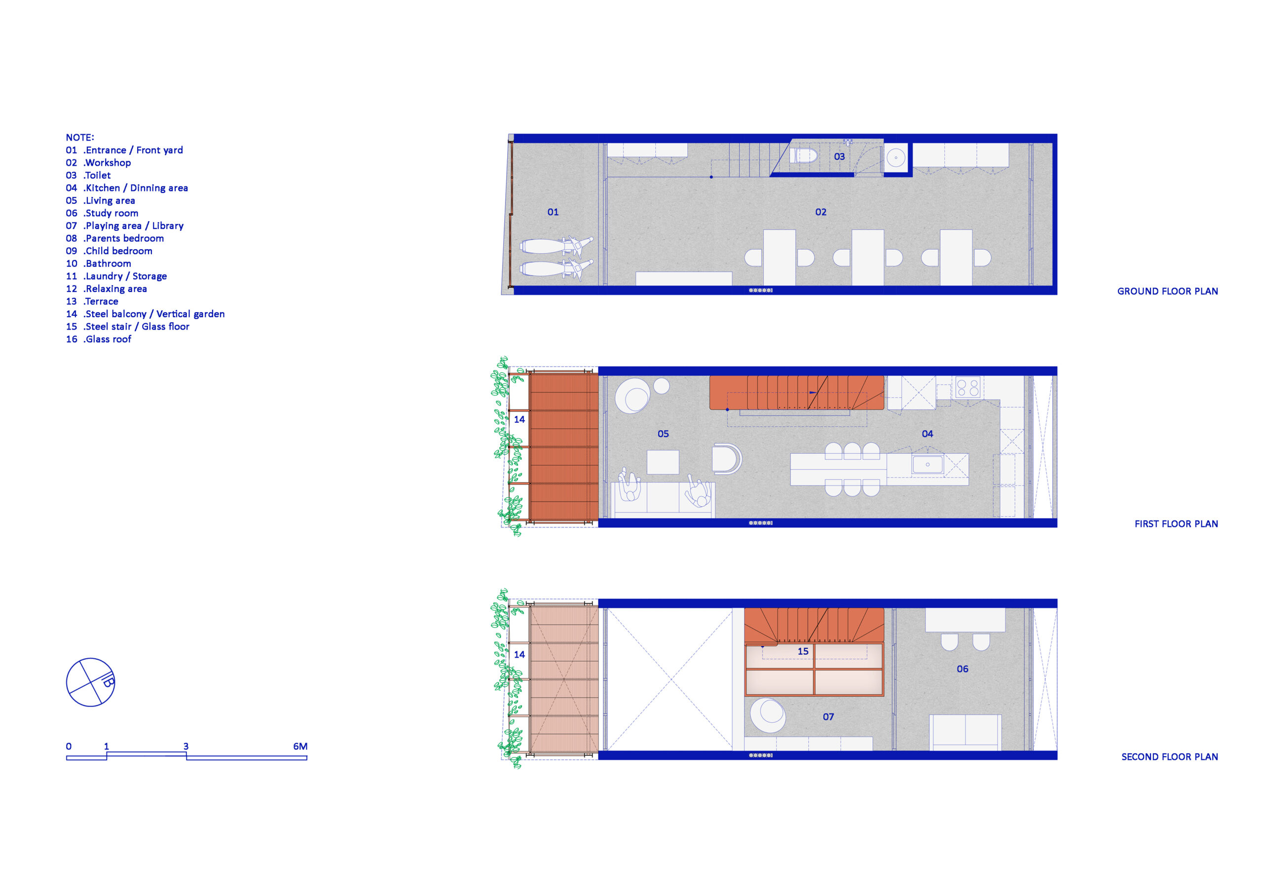
Giữa lòng Hà Nội – nơi những ngôi nhà ống thường có xu hướng khép kín để tìm kiếm sự riêng tư, MK House hiện ra như một thực thể khác biệt trên khu đất vỏn vẹn 44 m². Thay vì xây dựng một cấu trúc ngăn chia truyền thống, công trình chọn lối thiết kế mặt bằng mở và tối giản vách ngăn. Đây là cách tiếp cận nhằm phá vỡ sự cô lập giữa con người với đô thị và giữa các thành viên trong gia đình, kiến tạo một không gian sống nơi ranh giới giữa làm việc, sinh hoạt và vui chơi được xóa nhòa một cách tinh tế.

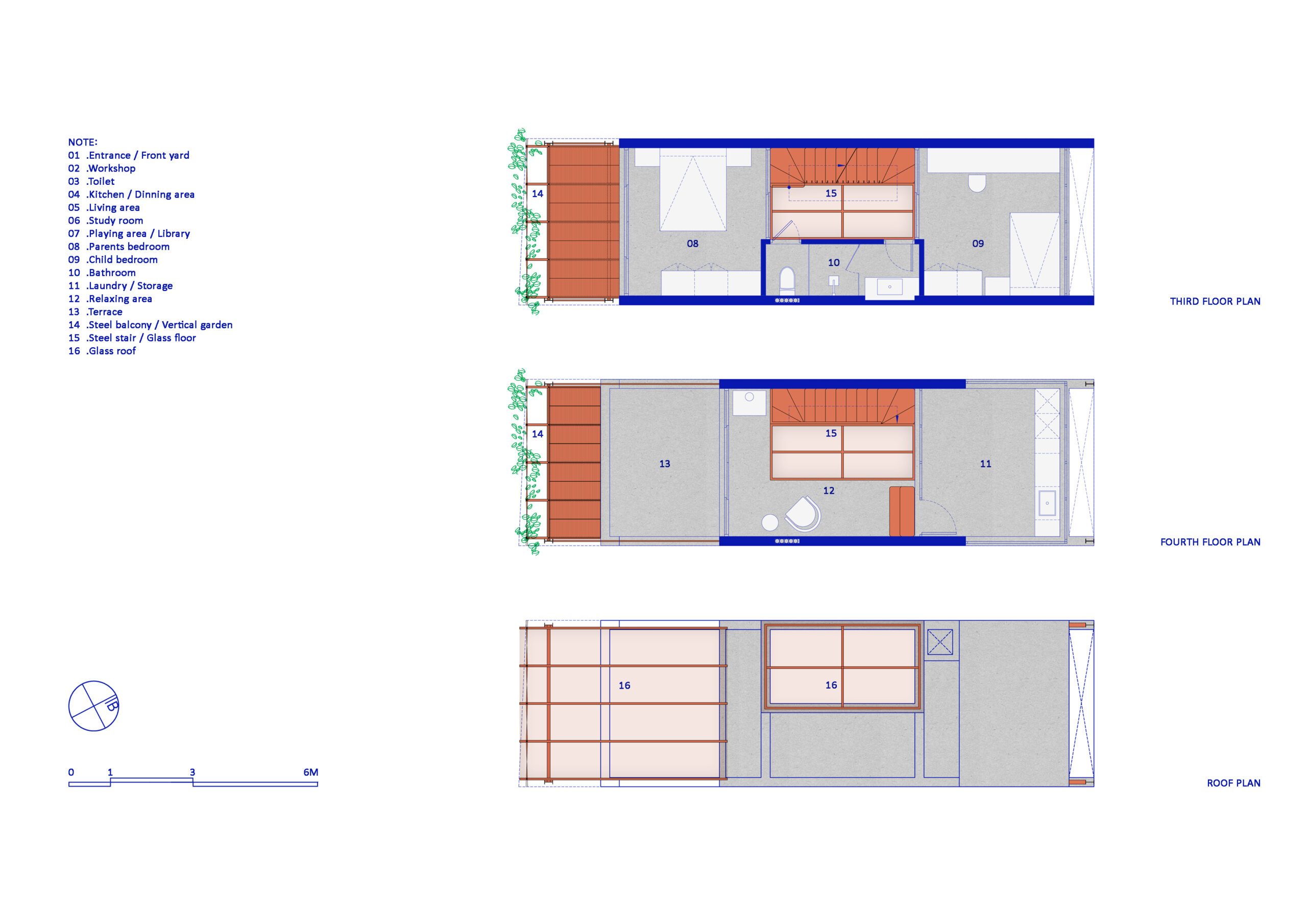
Giá trị kiến trúc đặc sắc của ngôi nhà nằm ở khả năng tối ưu hóa các yếu tố tự nhiên trong một diện tích hạn chế. Với chiều ngang chỉ 4m, nhóm thiết kế đã thay thế giếng trời truyền thống bằng một hệ hành lang sàn kính kết hợp thang thép rỗng. Cấu trúc này đóng vai trò là lõi giao thông thông minh, không chỉ giúp ánh sáng và không khí lưu thông xuyên suốt từ tầng trệt đến các tầng trên mà còn tạo ra sự kết nối thị giác liên tục. Nhờ đó, dù ở bất kỳ vị trí nào, các thành viên vẫn luôn cảm nhận được sự hiện diện của nhau, nuôi dưỡng sự gắn kết trong đời sống gia đình hiện đại.

Điểm nhấn ấn tượng nhất của mặt tiền chính là hệ sàn thép rỗng và lớp vỏ bao che bằng dải thép mỏng, mô phỏng hình dáng tấm liếp tre truyền thống. Giải pháp này tạo nên một khoảng đệm đa năng: vừa là ban công, vừa là “tấm rèm” uốn lượn ngăn cách mềm mại với phố phường.

MK House không phô diễn sự tiện nghi vật chất, mà tập trung vào giá trị của sự vừa đủ và trải nghiệm cảm xúc. Sự giao hòa giữa ánh nắng, gió trời và những nếp sống giàu bản sắc của gia chủ đã tạo nên một tổ ấm bền vững, nơi ký ức và hiện tại đan xen trong từng mét vuông diện tích.