LÀ YÊN BOUTIQUE VILLA | BSA DESIGN & BUILD FIRM
THÔNG TIN VỀ CÔNG TRÌNH
- Tên công trình: Là Yên Boutique Villa
- Địa chỉ: 10 Hẻm 11 Khe Sanh, P.10, TP. Đà Lạt
- Diện tích sàn: 1200 m²
- KTS chủ trì: Nguyễn Đức Phương
- Đơn vị thiết kế: BSA DESIGN & BUILD FIRM
- Team thiết kế kiến trúc: Võ Kim Phương Thanh
- Team thiết kế nội thất: Lương Phan Thanh Nhàn
- Đơn vị thi công: BSA Design & Build Firm
- Năm hoàn thành: 2025
- Nhiếp ảnh: Oki Hiroyuki
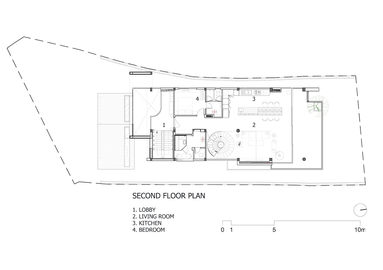
Với công trình này, nhóm thiết kế lựa chọn giải pháp kiến trúc phân lớp theo dạng bậc thang, bám sát địa hình tự nhiên để tổ chức không gian theo nhiều cao độ khác nhau. Cách này vừa hạn chế tác động đến thảm thực vật hiện trạng, vừa đảm bảo mỗi không gian bên trong đều có khả năng tiếp cận trực tiếp với cảnh quan rừng thông và thung lũng.
Hình khối công trình được chia tách rõ ràng, tạo thành chuỗi không gian độc lập nhưng vẫn liên kết mạch lạc qua hệ thống hành lang, sân hiên và bậc thang. Mái dốc giúp che chắn phù hợp với khí hậu lạnh và ẩm của Đà Lạt. Sự xen kẽ giữa các lớp không gian giúp tạo nên nhịp điệu thị giác nhẹ nhàng khi nhìn từ bên ngoài. Các mảng kính lớn được bố trí có chủ đích nhằm mở rộng tầm nhìn, mời gọi thiên nhiên đi vào trong công trình, làm mờ đi ranh giới giữa nội thất và cảnh quan.
Là Yên Boutique Villa dùng các loại vật liệu địa phương như đá tự nhiên, gỗ, kính, bê tông trần và khung thép đen. Đá tự nhiên dùng cho phần móng và tầng trệt, giúp công trình “neo” vào địa hình dốc và tăng cảm giác vững chãi. Gỗ và kính được dùng ở các tầng trên, mang lại cảm giác nhẹ nhàng, đồng thời đảm bảo sự hài hòa với tông màu của cảnh quan xung quanh. Bê tông trần và khung thép đen được sử dụng có kiểm soát trong nội thất, giữ cho không gian tối giản, hiện đại nhưng vẫn ấm áp.
Chi tiết kiến trúc được tiết chế tối đa, mọi yếu tố trang trí đều hướng đến công năng và tính bản địa. Không gian nội thất sẽ trở thành một phông nền trung tính để thiên nhiên Đà Lạt tỏa sáng trong từng góc nhìn.
Dựa trên đặc trưng khí hậu Đà Lạt mát mẻ quanh năm, độ ẩm cao, mưa nhiều, công trình tích hợp nhiều giải pháp vi khí hậu thụ động như: dùng cửa kính lớn kết hợp rèm vải dày để kiểm soát ánh sáng và nhiệt độ theo mùa; sử dụng mái đua rộng và hiên sâu để chắn mưa; lắp hệ thống thông gió tự nhiên, tạo các khoảng hở giữa các khối nhà và hành lang mở để tăng đối lưu không khí. Những giải pháp này vừa giúp giảm thiểu nhu cầu sử dụng năng lượng, vừa góp phần duy trì trải nghiệm nghỉ dưỡng thoải mái, gần gũi với thiên nhiên.
Là Yên hòa mình vào thiên nhiên Đà Lạt, là bước đi nhẹ nhàng nhưng rõ nét của BSA Design & Build Firm trên hành trình kiến tạo kiến trúc gắn với bối cảnh, bền vững và sâu sắc.