GREEN MODULAR HOME | CÔNG TY TNHH XMARCHITECT (XMA)

THÔNG TIN DỰ ÁN:

Dự án được định hình từ tư duy kiến trúc cấp tiến: xem công trình không phải là một khối tích bất biến, mà là sự tổ hợp của các “tế bào cơ sở” có khả năng sinh trưởng. Chúng tôi đưa ngôn ngữ thiết kế về những hình khối kỷ hà cơ bản nhất,biến việc thiết kế và xây dựng trở thành trò chơi Lego khổ lớn. Chiến lược này tạo ra một “Hệ thống mở”. Vật liệu chính là gỗ và rác nhựa tái chế, vừa thân thiện môi trường vừa tạo ra vòng tuần hoàn bền vững cho ngành xây dựng. Nhờ cấu trúc mô-đun chuẩn hóa, từng khối nhà có thể được sản xuất sẵn trong xưởng, vận chuyển gọn nhẹ và lắp ráp nhanh chóng tại công trường, kể cả ở những khu vực địa hình hiểm trở, ngõ nhỏ hoặc vùng núi cao nơi việc thi công truyền thống gặp nhiều khó khăn.Khả năng tùy biến hình thái của hệ thống đã được kiểm chứng sắc nét qua ba loại hình kiến trúc với ba bối cảnh hoàn toàn đối lập:

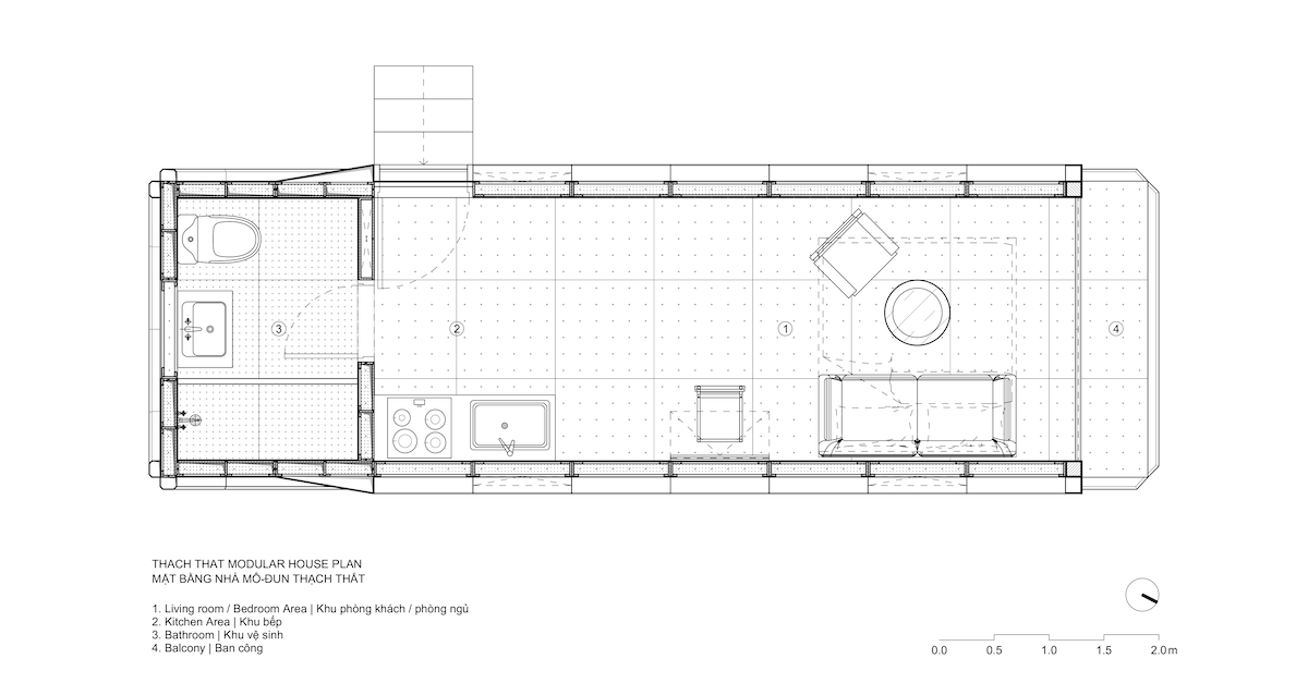
Nhà vườn Thạch Thất (Bối cảnh Nông Thôn & Nghỉ dưỡng): Các khối mô-đun được liên kết tạo thành không gian lưu trú kiên cố, hòa nhập với địa hình tự nhiên. Tại đây, cấu trúc đóng vai trò khung xương vững chãi, thay thế phương pháp xây dựng bê tông truyền thống, giảm thiểu tối đa sự xâm lấn vào hiện trạng đất và hệ sinh thái bản địa.

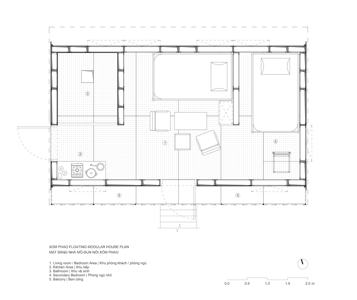
Nhà Nổi Xóm Phao (Bối cảnh Mặt nước & Xã hội): Hệ thống chuyển mình thành giải pháp nhà ở thích ứng thiên tai. Nhờ trọng lượng nhẹ của khung gỗ dán và vỏ nhựa tái chế, ngôi nhà dễ dàng kết hợp hệ phao để vận hành ổn định trên mặt nước. Tính “mô-đun hóa” phát huy tối đa ưu điểm về tốc độ: quy trình lắp dựng thần tốc giúp đáp ứng nhu cầu cấp thiết về chỗ ở cho cộng đồng yếu thế.

Gian hàng Triển Lãm (Bối cảnh Đô thị & Sự kiện): Trong không gian công cộng, các mô-đun thể hiện tính linh hoạt và thẩm mỹ hiện đại. Công trình minh chứng cho khả năng lắp ráp – tháo dỡ nhanh gọn, không để lại rác thải xây dựng. Đây là tiền đề cho các ứng dụng không gian triển lãm lưu động trong tương lai.

Định hướng chiến lược của dự án là thiết lập một hệ thống nhà ở đa năng. Trong tương lai, các khối mô-đun sẽ được thiết kế tích hợp công năng vận chuyển: biến mỗi khối modun nhà thành một thùng chứa hàng cứu trợ, có thể thả dù hoặc vận chuyển bằng xe tải đến vùng thiên tai và mở ra thành nơi trú ẩn an toàn ngay lập tức. Đồng thời, sự chuẩn hóa tuyệt đối của các chi tiết liên kết là cơ sở dữ liệu hoàn hảo để ứng dụng cánh tay rô-bốt và dây chuyền tự động hóa vào thi công. Bước tiến này sẽ chuyển dịch ngành xây dựng từ thủ công sang sản xuất công nghiệp chính xác, mở ra kỷ nguyên nhà ở lắp ghép quy mô lớn với chất lượng đồng nhất.

Dự án không chỉ giải quyết bài toán vật liệu kiến trúc xanh hay không gian ở, mà là lời giải tổng thể cho sự thích ứng của kiến trúc trước những biến động của môi trường và xã hội.