COZY HOUSE | MIRAI HOUSE

THÔNG TIN DỰ ÁN:

Ngôi nhà được thiết kế như một tổ ấm dành cho gia đình ba thành viên, gồm bố, mẹ và một bé gái. Không chỉ là nơi ở, công trình được định hướng trở thành không gian nuôi dưỡng cảm xúc, gắn kết các thành viên và đồng hành cùng sự phát triển của gia đình qua thời gian.

Xuất phát từ bối cảnh đô thị Việt Nam, khu đất mang đặc trưng điển hình của nhà ống với hình dáng chữ nhật kéo dài theo chiều sâu. Đặc điểm này đặt ra yêu cầu tổ chức không gian theo trục đứng, đồng thời cần một giải pháp bố trí hợp lý để đảm bảo sự liên kết thị giác, thông gió, chiếu sáng tự nhiên và trải nghiệm sống liền mạch giữa các tầng.

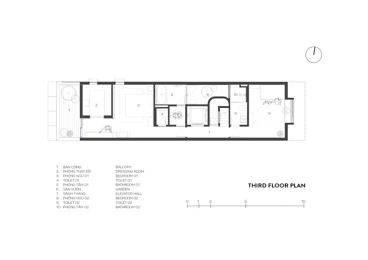
Ý tưởng thiết kế được phát triển từ mặt cắt – yếu tố cốt lõi định hình toàn bộ cấu trúc không gian của ngôi nhà. Các không gian ngủ được bố trí gần nhau, tạo điều kiện để bố mẹ có thể dễ dàng chăm sóc và đồng hành cùng con trong những năm tháng đầu đời. Không gian sinh hoạt chung được đặt ở vị trí trung tâm, ngập tràn ánh sáng tự nhiên, thông thoáng và mang lại cảm giác ấm áp, gần gũi. Từ đó, công trình được đặt tên là “Ngôi Nhà Ấm Cúng” – phản ánh đúng tinh thần và giá trị mà thiết kế hướng tới.

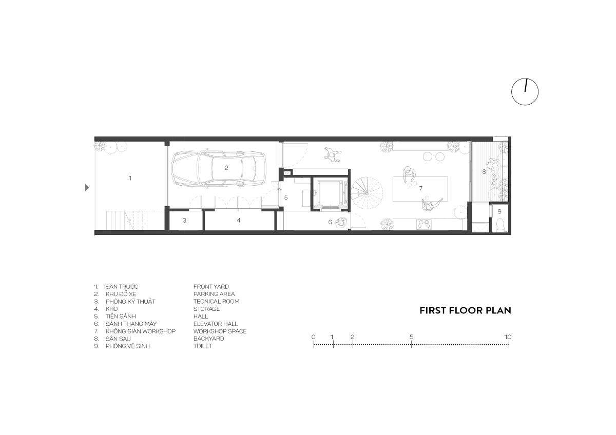
Với concept đề cao sự tương tác trong đời sống thường nhật, giải pháp mặt cắt thông tầng tại khu vực phòng khách đóng vai trò như “trái tim” của ngôi nhà. Tại đây, các thành viên có thể nhìn thấy, lắng nghe và cảm nhận sự hiện diện của nhau dù đang ở những không gian khác nhau. Từ phòng khách, tầm nhìn mở rộng về khu bếp, khoảng xanh sân vườn và cả không gian sân thượng, tạo nên một dòng chảy sinh hoạt liên tục và giàu cảm xúc.

Bên cạnh không gian chung, ngôi nhà vẫn đảm bảo những khoảng riêng tư cần thiết cho từng thành viên. Người bố có góc làm việc yên tĩnh, tràn ngập ánh sáng tự nhiên để tập trung giải quyết công việc. Người mẹ sở hữu không gian workshop rộng rãi trải dài ở tầng 1 và tầng 2, phục vụ cho các hoạt động thủ công và sáng tạo. Trong khi đó, phòng ngủ của bé gái được thiết kế như một thế giới riêng đầy mơ mộng, với khung cửa sổ lớn – nơi khơi gợi trí tưởng tượng và nuôi dưỡng sự sáng tạo.

Ngôi nhà có mặt đứng chính hướng Tây – hướng chịu tác động lớn của bức xạ nhiệt trong điều kiện khí hậu Việt Nam. Do đó, các giải pháp chống nóng và chống thấm được ưu tiên hàng đầu. Công trình sử dụng hệ tấm ốp Nichiha đến từ Nhật Bản, trở thành một trong những công trình đầu tiên tại Việt Nam ứng dụng vật liệu này. Với cấu tạo đặc biệt, hệ ốp giúp bảo vệ bề mặt tường khỏi tác động của thời tiết, giảm bức xạ nhiệt, đồng thời tạo lớp không khí đệm phía sau, nâng cao hiệu quả cách nhiệt và đảm bảo tiện nghi bền vững cho ngôi nhà theo thời gian.