CASA PURA | APS CONCEPT
THÔNG TIN DỰ ÁN
- Tên công trình: Casa Pura
- Đơn vị thiết kế: APS Concept
- Địa điểm: TP. Thủ Đức, TP. Hồ Chí Minh
- KTS chủ trì: KTS Hùng Võ
- Nhóm thiết kế: NTK NT Phối Phối Trịnh, KTS Dương Lê, KTS Nguyễn Đức Huy, KTS Thành Long,..
- Năm hoàn thành: 2025
Cấu trúc công trình được phát triển dựa trên việc kết nối và tái thiết kế hoàn toàn hai căn nhà phố liền kề. Đây là một quy trình kỹ thuật phức tạp, đòi hỏi sự tính toán chính xác về hệ thống kết cấu chịu lực khi phá bỏ các diện tường ngăn cách cũ để tạo lập sự thông suốt. Ánh sáng tự nhiên và các khoảng thông tầng được sử dụng như những thành phần kiến trúc chủ đạo, điều tiết dòng chảy cảm xúc thông qua việc thay đổi cường độ sáng tại các khu vực giao thông đứng. Thay vì sử dụng vách ngăn cố định, hệ cửa trượt thanh mảnh được ứng dụng để phân chia không gian linh hoạt, vừa đảm bảo tính riêng tư, vừa duy trì sự lưu thông khí và tầm nhìn xuyên suốt.
Về mặt hình khối, kiến trúc Casa Pura ưu tiên những đường cong bo tròn thủ công thay vì các chi tiết trang trí rời rạc. Giải pháp này giúp giảm thiểu xung đột thị giác và dẫn dắt ánh mắt chuyển động một cách nhịp nhàng theo các khoảng mở của công trình. Các không gian thông tầng được bố trí chiến lược dọc theo các trục giao thông chính nhằm giải phóng tầm nhìn. Bảng vật liệu được tiết chế tối đa với các tông màu trung tính như be, gỗ nhạt và đá trắng, tạo nên một tổng thể tinh giản nhưng đầy đủ sự ấm áp cần thiết.
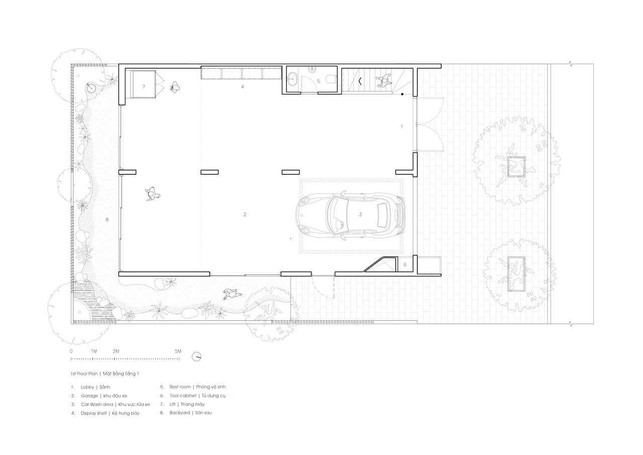
Hệ thống công năng được phân bổ logic theo trình tự từ động đến tĩnh. Tầng trệt đóng vai trò là garage trưng bày bộ sưu tập cá nhân. Tầng 2 tập trung cho khu vực làm việc với hệ bàn dài đón sáng tự nhiên và các phòng kỹ thuật trung tâm. Tầng 3 là không gian nghỉ ngơi riêng tư với phòng ngủ Master hướng nhìn ra công viên, tích hợp hệ trần ánh sáng mô phỏng bầu trời đêm và khu vực vệ sinh thiết kế theo lối mở.
Khu vực sinh hoạt chung nằm tại tầng 4 và tầng 5, nơi các đường cong kiến trúc được thể hiện rõ nét nhất. Không gian bếp và phòng khách được thiết kế để khai thác ánh sáng từ hai phía. Đảo bếp kết hợp bàn ăn có khả năng mở rộng tối ưu hóa công năng sử dụng cho cả sinh hoạt thường nhật và các sự kiện đông người. Hệ thống chiếu sáng gián tiếp được ưu tiên sử dụng xuyên suốt, kết hợp với các món nội thất có hình khối tối giản nhằm duy trì tính liên tục của ngôn ngữ kiến trúc.
Phần mái của công trình là một vườn nhiệt đới, đóng vai trò kết nối xanh giữa mặt đất và bầu trời, đồng thời là nơi đặt các hệ thống kỹ thuật như máy lọc nước, hệ thống cấp khí tươi một cách kín đáo. Tổng thể Casa Pura là một thực thể kiến trúc bền vững, nơi mỗi chi tiết đều được tinh lọc để phục vụ lối sống tối giản, tập trung vào giá trị cốt lõi của không gian và con người.