BLUE BLOA | RED5 STUDIO

THÔNG TIN DỰ ÁN:

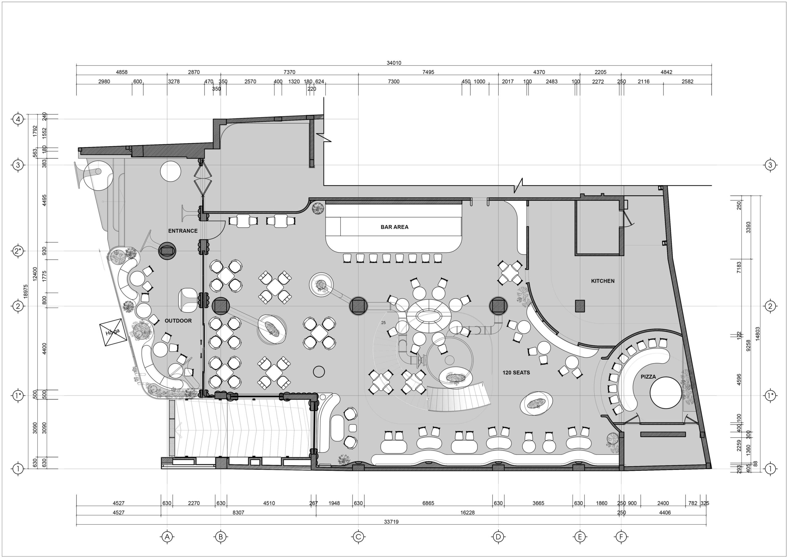
BLUE BLOA – KID COFFEE & EATERY

“We are the music makers, and we are the dreamers of dreams.”

Lấy cảm hứng từ bộ phim Willy Wonka & Nhà máy sôcôla, chúng tôi đã có cơ hội tạo nên một công trình đầy sắc màu dành cho cả gia đình, đặc biệt là trẻ nhỏ giữa lòng Thủ Đô – Candy Factory Blue Bloa.

Từ mặt tiền, tinh thần “thiết kế cho trẻ em” đã được thể hiện qua các chi tiết ống khói và loa cách điệu vui nhộn mang hơi hướng vị lai (futurism) như một lời chào mời – báo hiệu một thế giới diệu kỳ đang chờ đón các bé.

Không gian tầng trệt được kiến tạo bởi những hình khối lớn, rực rỡ sắc màu và nhịp điệu vui tươi, khéo léo kết hợp nhiều loại vật liệu khác nhau như đá mài terrazzo, sơn hiệu ứng,… để tạo nên một không gian sáng tạo và kích thích trí tò mò của bé, vừa đủ tinh tế để ba mẹ thoải mái nhâm nhi cà phê, vừa dễ dàng quan sát các con thỏa sức vui chơi ở khu làm bánh pizza bên cạnh. Chiếc cầu thang lớn ở giữa như mở ra một phần không gian đầy màu sắc phía trên, nhằm thu hút các bé đến với tầng 2.

Sân chơi ở tầng 2 được dẫn dắt theo hình vòng cung, đưa các bé đi từ bất ngờ này đến bất ngờ khác. Từ khu vận động với cầu trượt, nhà banh, tường leo trèo; đến những góc chơi theo sở thích như khu trang điểm cho bé gái, khu hóa thân thành lính cứu hỏa cho bé trai; và cả những khu nuôi dưỡng sự khéo léo như phòng workshop hay góc tô tượng. Toàn bộ vật liệu ở tầng này chủ yếu là nệm và vinyl, cùng với sự tính toán kỹ lưỡng về trọng lượng nội thất để tạo ra một môi trường an toàn và thân thiện nhất cho các bé.

Có thể nói, mỗi chi tiết tại Blue Bloa – từ việc chọn lựa vật liệu đến cách phân chia khu vực – đều là sự chăm chút tỉ mỉ với mong muốn vun đắp những ký ức tuổi thơ đẹp đẽ cho bé và cả gia đình