AD705 | AVALO INTERIOR JSC

THÔNG TIN DỰ ÁN

  • Diện tích: 345 m2
  • Địa điểm: Anh Đào 705, Vinhomes Riverside, Long Biên, Hà Nội

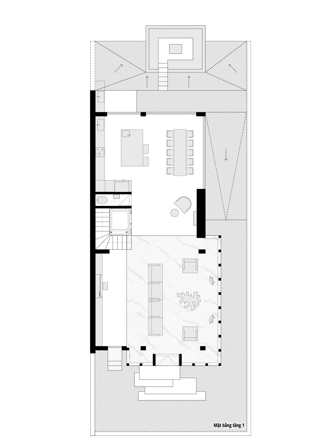
Gia chủ là người dành nhiều thời gian sinh hoạt ở nhà, do đó thiết kế muốn ưu tiên trải nghiệm tốt nhất cho khu vực chung là phòng khách và phòng bếp ăn. Trong đó khu bếp và phòng ăn được đập thông với vách cửa lùa lớn để view trọn con sông phía sau nhà. Phòng khách là điểm nhấn như một khối hộp độc lập cao theo chiều cao của 2 tầng nhà. Khoảng thông tầng được bọc bởi hệ lam kiến trúc thẳng đứng. Mặt tiếp xúc của hệ lam đứng quay về phía Bắc nên hạn chế được tối đa tia nắng mạnh rọi vào nhà. Hệ cây xanh được kết hợp cả cây đứng lẫn cây rũ, tối đa khả năng quan sát khi ngồi ở phòng khách. Ranh giới giữa trong nhà và ngoài nhà được tiêu biến nhờ hệ lam kiến trúc xen lẫn với hệ cây xanh.

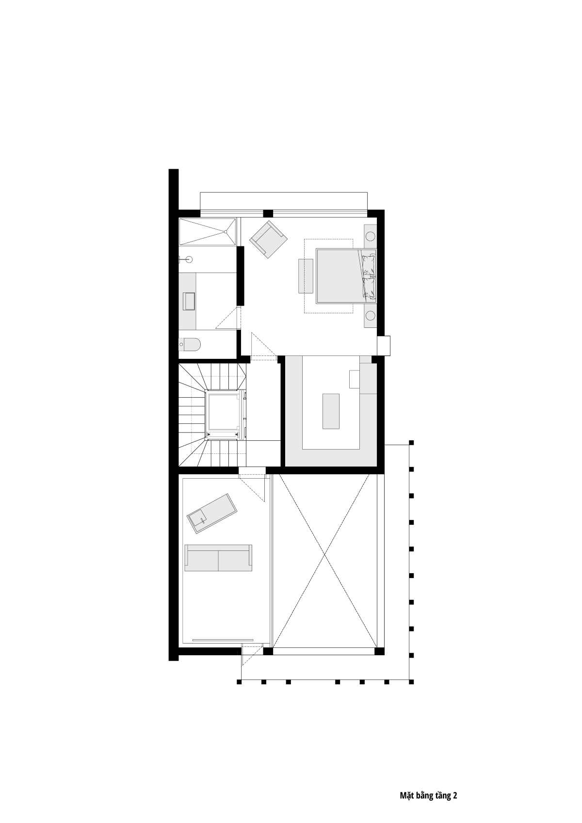
Các phòng ngủ không thiết kế theo 1 kiểu thống nhất, mà được thiết kế khác nhau nhằm đáp ứng nhu cầu và sở thích riêng của mồi người.