A11 HOUSE | HAVA STUDIO

THÔNG TIN VỀ CÔNG TRÌNH

  • Tên công trình : A11 House
  • Địa chỉ : TP. Vũng Tàu
  • Diện tích khu đất (m²) : 230 m²
  • Diện tích xây dựng (m²) : 160 m²
  • KTS chủ trì : Vũ Quang Hiếu
  • Đơn vị thiết kế : HAVA Studio
  • Team thiết kế kiến trúc : Đinh Tố Na, Hồ Quốc Tuấn
  • Năm hoàn thành : 2023

A11 House tọa lạc tại khu ở hiện hữu cách bãi biển khoảng 1 km. Khu ở thuộc dự án đã được đầu tư xây dựng hạ tầng từ lâu và có mật độ xây dựng tương đối dày đặc. Ngôi nhà nổi bật trong khu vực với ngôn ngữ thiết kế  hiện đại & độc đáo.

Công trình nhà ở kết hợp kinh doanh lưu trú phục vụ du lịch. Nằm trên một khu đất vàng gần bãi biển, do đó nhu cầu về mật độ công năng của chủ đầu tư rất lớn.

Khu đất hình thang, rất méo, hẹp mặt tiền, tiếp cận khó. Một thách thức không nhỏ đối với nhóm thiết kế của chúng tôi.

Mặc dù bất lợi về mặt hình thái, nhưng bằng các thủ pháp thiết kế như đổi trục giao thông đứng, tổ chức nhiều khoảng thông tầng, không gian mở bên trong, chúng tôi đã tổ chức công năng cho công trình một cách tối ưu và linh hoạt.

Mật độ công năng cao trên diện tích không lớn, để giải quyết vấn đề vi khí hậu và tiện nghi ” Chúng tôi đã thiết kế công trình với khoảng lùi phía trước và tạo ra một không gian mở ngay trong lòng khu đất, lấy đó làm trung tâm, kết hợp làm vườn cảnh mini và bể bơi giải trí “.

Bể bơi và vườn cảnh quan trung tâm với diện tích không lớn trên một thế đất không vuông vắn, chúng tôi đã biến ” yếu điểm ” thành ” lợi thế ”  hoá giải những góc khuất bất lợi đó bằng thiết kế vườn đứng, với thủ pháp cách điệu hình ảnh những con sóng biển kết hợp với thác nước và vườn cây xanh mát, mang đến sự gần gũi, thân thiện.

Không gian mở tại vườn cảnh mini & mặt nước, ngoài giá trị về công năng, thẩm mỹ, còn như là một ” túi ánh sáng & không khí “. Góp phần vô cùng quan trọng vào việc thông gió, giải toả các điểm nhìn cho các không gian bên trong công trình.

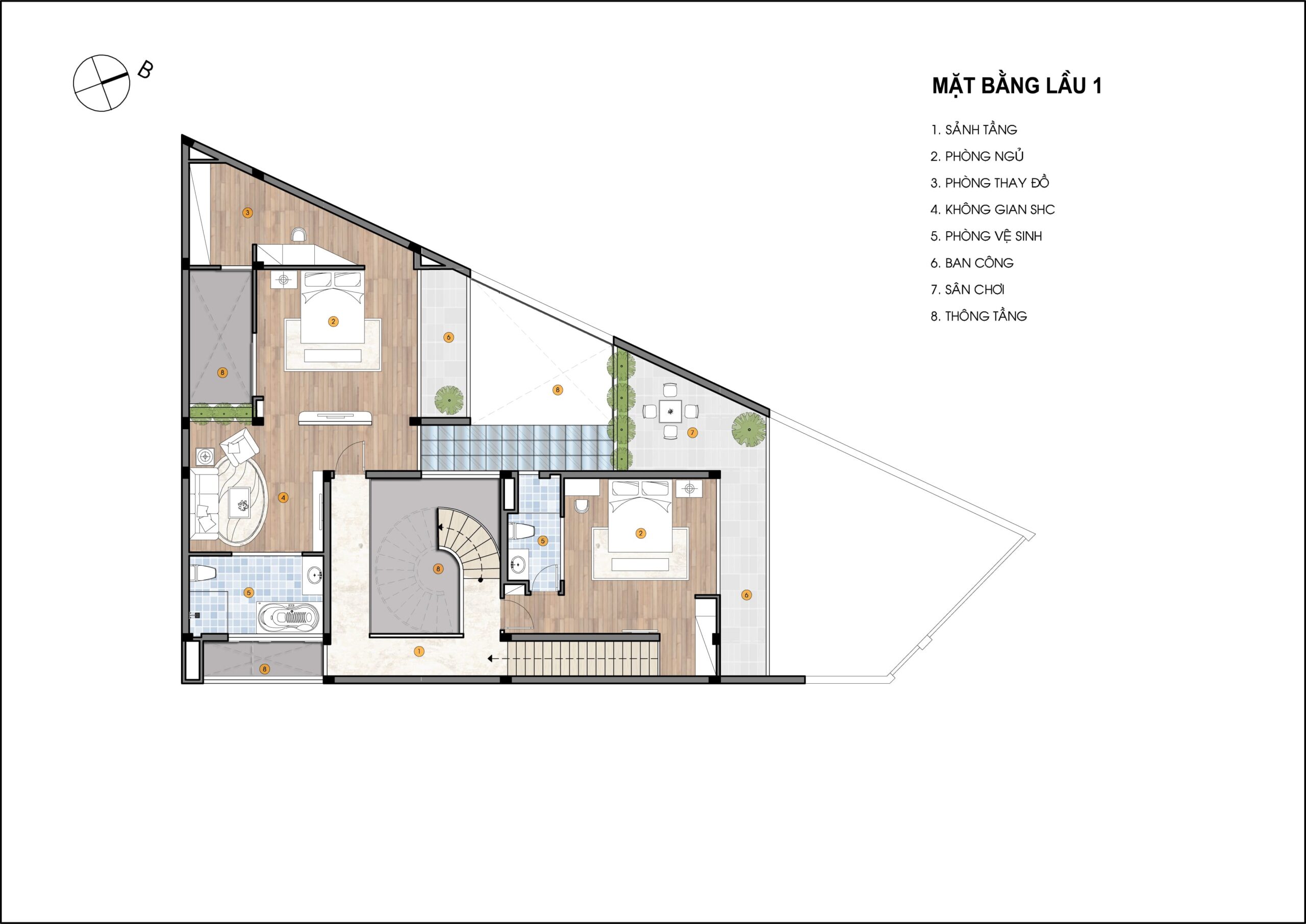
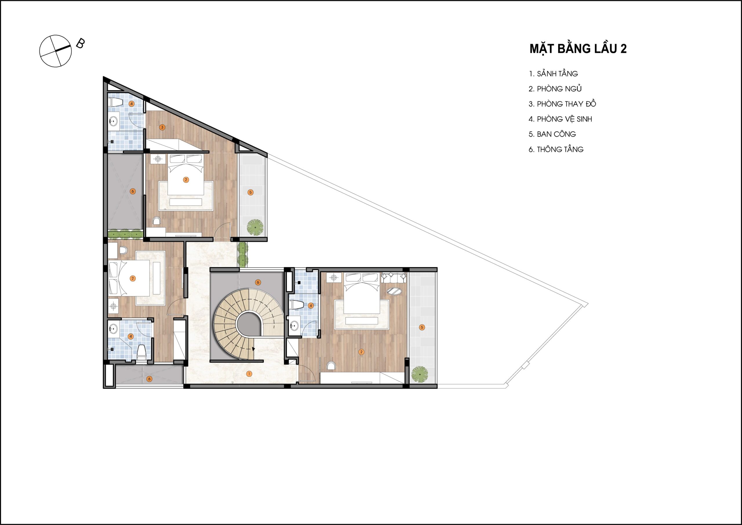
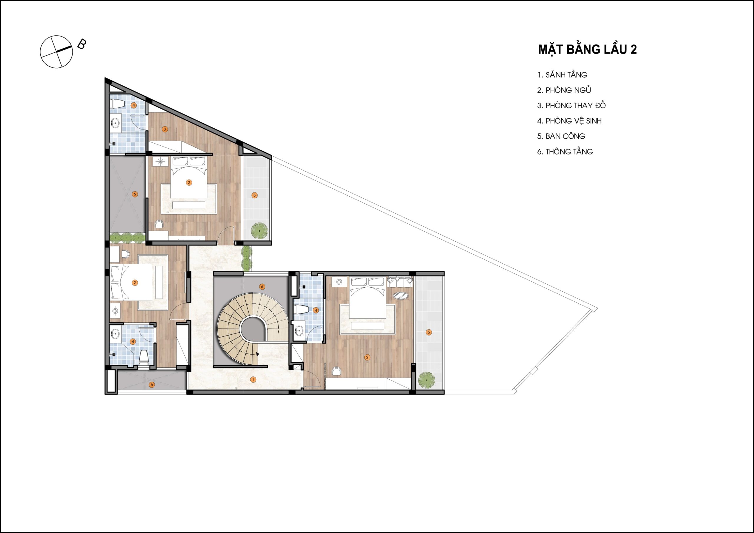
Giải pháp đổi trục giao thông đứng được áp dụng nhằm mở rộng không gian cho khu vực tầng trệt và tạo ra khoảng thông tầng, các khoảng không gian ” thở ” cần thiết cho mật độ công năng rất cao bên trong công trình.

Trục đứng giao thông từ tầng trệt được đổi vị trí tại lầu 1, thông qua thang tròn giữa nhà, vị trí được chúng tôi đặc biệt chú trọng trong thiết kế. Chiếc thang tròn mềm mại “lơ lửng” giữa một không gian vuông vức, với màu ” cam nhạt ” nổi bật, là một điểm nhấn cho không gian chung.

HAVA vô cùng hạnh phúc khi mang tới 1 sản phẩm thiết kế rất tốt, ngôi nhà cao cấp, tiện nghi và sang trọng. Phục vụ tốt cho các chiến lược kinh doanh mạnh mẽ và bền vững của chủ đầu tư trong lĩnh vực lưu trú đang rất phát triển tại Vũng Tàu!