A.K HOME | PAU ARCHITECTS

THÔNG TIN DỰ ÁN: 

  • Tên công trình: A.K Home
  • Địa chỉ: Quận Gò Vấp, TP. Hồ Chí Minh
  • Diện tích khu đất: 70m²
  • KTS chủ trì: KTS Nguyễn Văn Trung, Ths. KTS Nguyễn Thị Mộng Huyền
  • Nhóm thiết kế: KTS Cao Minh Thi, KTS Huỳnh Thanh Hảo
  • Đơn vị thiết kế & thi công: PAU Architects
  • Năm thiết kế: 2022
  • Năm hoàn thành: 2023
  • Nhiếp ảnh: Quang Dam
Tọa lạc tại quận Gò Vấp, TP. Hồ Chí Minh, A.K Home là một lời giải đầy thuyết phục cho bài toán kiến trúc trên khu đất 70m2 có hình dạng bất đối xứng. Thay vì cố gắng lấp đầy diện tích, PAU Architects đã lựa chọn hướng tiếp cận tối ưu hóa vi khí hậu và tạo dựng không gian sống giàu chiều sâu, giúp công trình hòa nhập tinh tế vào bối cảnh khu dân cư nhiều cây xanh xung quanh.
 
Điểm nhấn kiến trúc nằm ở mặt đứng giật cấp với các đường chéo đầy nhịp điệu, giúp xử lý khéo léo góc lệch của khu đất. Một lớp lưới thép đục lỗ bao phủ mặt tiền đóng vai trò như màng lọc thị giác và ánh sáng, vừa đảm bảo sự riêng tư trong mật độ đô thị dày đặc, vừa giảm bức xạ nhiệt trực tiếp. Khoảng lùi mặt đứng tạo ra các vùng đệm xanh, nơi các loại cây nhiệt đới phát triển, góp phần làm dịu mát không gian nội thất.
 
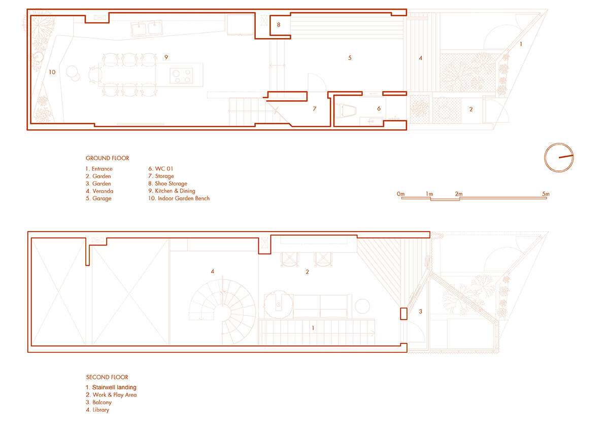
Về tổ chức không gian, công trình vận dụng cấu trúc lệch tầng để tạo ra dòng đối lưu không khí xuyên suốt từ tầng trệt lên đến mái. Tầng trệt được thiết kế mở với khu bếp và bàn ăn kết nối trực tiếp với khoảng thông tầng xanh phía cuối nhà – đóng vai trò là “lá phổi” điều hòa độ ẩm và ánh sáng. Phòng khách tại tầng lửng liên kết mềm mại với các tầng trên bằng cầu thang cong, tạo ra một mạch chuyển động không gian liên tục, không bị chia cắt bởi các bức tường đặc.
 
Hệ thống phòng ngủ được bố trí tại các tầng cao hơn, tận dụng tối đa ánh sáng khuếch tán từ các khoảng lùi mặt tiền và giếng trời. Sự kết hợp giữa mảng xanh đệm nhiệt và các ô cửa có chủ đích giúp ngôi nhà luôn duy trì được sự thông thoáng tự nhiên mà không cần quá phụ thuộc vào thiết bị cơ điện. Trên cùng là sân thượng với bồn ngâm và vườn cây, tạo nên một “ốc đảo” tĩnh lặng giữa lòng phố thị.