A.K HOME | PAU ARCHITECTS

THÔNG TIN DỰ ÁN: 

 A.K Home là một dự án nhà phố nhỏ, nằm tại khu dân cư yên tĩnh với nhiều cây xanh. Trên khu đất chỉ rộng 70m², lại có mặt bằng lệch góc so với trục đường chính, bài toán đặt ra là làm thế nào để tối ưu không gian sống trong điều kiện giới hạn – vừa đảm bảo sự riêng tư, vừa tận dụng tốt ánh sáng và thông gió tự nhiên.
  • Bối cảnh đô thị và định hướng thiết kế

Chủ nhà mong muốn một tổ ấm không phô trương, nhưng thể hiện được cá tính riêng – nơi để trở về và hòa mình vào nhịp sống của khu phố. Từ điểm bất lợi về hình dáng khu đất, nhóm thiết kế đã tạo nên một mặt đứng giật cấp – lấy nhịp điệu của những đường chéo làm điểm nhấn. Khối nhà dần lùi về sau, mở ra khoảng đệm với không gian đô thị, đồng thời tạo điều kiện đón ánh sáng tự nhiên len vào bên trong.

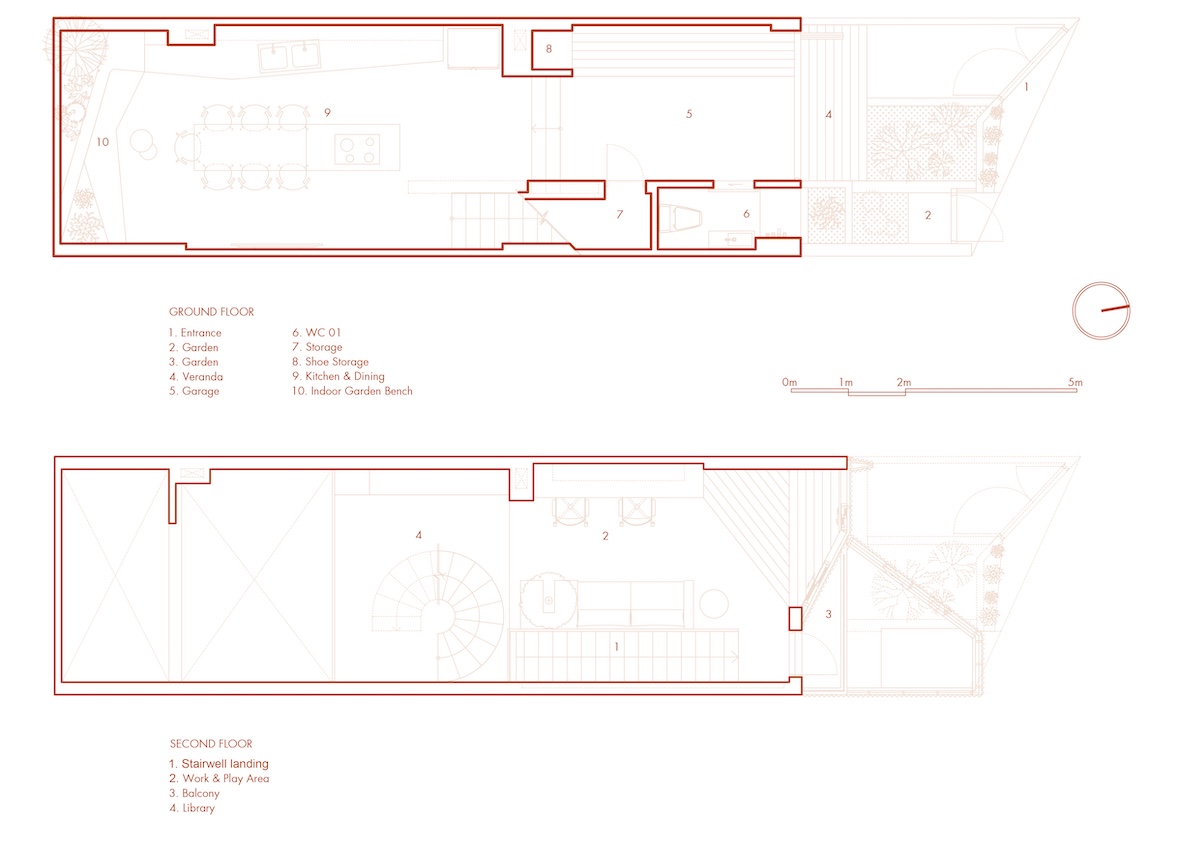
Tổ chức không gian lệch tầng

Công trình được tổ chức theo mô hình lệch tầng, giúp không gian luân chuyển linh hoạt và tăng hiệu quả chiếu sáng – thông gió.

– Tầng trệt dành cho khu vực bếp, bàn ăn và để xe. Cuối nhà là khoảng đệm mở kết hợp mảng xanh, giúp đưa ánh sáng và khí trời len sâu vào không gian nấu nướng – không chỉ là nơi dùng bữa, mà còn là không gian thư giãn và tái tạo năng lượng mỗi ngày.

– Tầng lửng là không gian tiếp khách, nối liền qua cầu thang cong – một chi tiết vừa tiết kiệm diện tích, vừa tạo sự chuyển động mềm mại. Đây cũng là nơi sinh hoạt chung, làm việc và giải trí. Nhờ nhịp sống linh hoạt của các thành viên, tầng lửng tuy nhỏ nhưng không chia cắt công năng, ngược lại trở thành nơi kết nối và gắn bó.

– Tầng một gồm hai phòng ngủ, mỗi phòng đều tiếp cận ánh sáng tự nhiên và có vệ sinh riêng. Phòng ngủ chính tận dụng khoảng lùi mặt đứng để dẫn sáng từ mái xuống sâu bên trong, ngay cả khu vực phòng tắm cũng được chiếu sáng tự nhiên – đảm bảo tính riêng tư mà vẫn thông thoáng.

– Sân thượng là nơi thư giãn – với khu tắm bồn bán lộ thiên, kết hợp các không gian trồng cây để phục vụ thú chơi kiểng lá của gia chủ.

  • Giải pháp khí hậu và thông gió

Với mặt bằng lệch góc và diện tích nhỏ, công trình áp dụng nhiều chiến lược vi khí hậu như:

– Tổ chức lệch tầng giúp tạo đối lưu khí hiệu quả.

– Khoảng hở cuối nhà đóng vai trò như giếng trời ngang.

– Các ô cửa được bố trí để tối ưu chiếu sáng mà vẫn đảm bảo riêng tư.

– Mảng xanh xen kẽ ở nhiều tầng nhằm cân bằng nhiệt độ và độ ẩm, giúp công trình thích ứng tốt với khí hậu nhiệt đới.

  • Mặt đứng và lớp vỏ công trình

Mặt tiền công trình được phủ bởi lớp lưới thép giật cấp – vừa là màng che chắn riêng tư trong bối cảnh đô thị đông đúc, vừa là yếu tố thẩm mỹ nhằm cân bằng lại hình khối khu đất lệch. Lớp lưới này giúp hạn chế tầm nhìn trực diện từ nhà đối diện, đồng thời làm dịu bức xạ mặt trời chiếu vào sân trước – tạo điều kiện thuận lợi cho các loài kiểng lá phát triển.

A.K Home là một giải pháp tinh tế cho bài toán nhà ở diện tích nhỏ trong lòng đô thị – nơi mọi chi tiết đều được tính toán kỹ lưỡng để vừa đảm bảo công năng, vừa truyền tải cá tính sống của gia chủ. Sự gắn kết giữa ánh sáng, gió, cây xanh và các không gian đa lớp tạo nên một trải nghiệm sống vừa ấm cúng, vừa đầy cảm hứng.