NHA BUI DINH TUY | TOAN NGUYEN ARCHITECTS
THÔNG TIN DỰ ÁN:
- Tên dự án: Nhà Bùi Đình Tuý
- Đơn vị thiết kế: Toan Nguyen Architects
- Kiến trúc sư chủ trì: KTS Nguyễn Đức Bảo Toàn
- Nhóm thiết kế: KTS Phan Thoại Liên, KTS Phan Thảo Ngọc, KTS Vũ Tấn Liêm, KTS Phạm Nguyễn Hải Quang
- CĐT: Bác Lộc
- Năm hoàn thành xây dựng: 2022
- Địa điểm xây dựng: Đường Bùi Đình Túy, Phường Bình Thạnh, TP.HCM
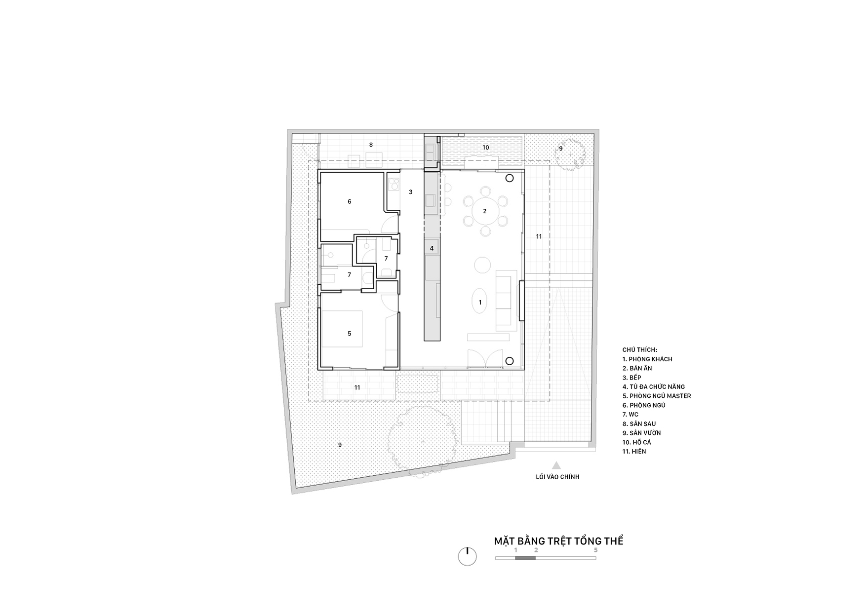
- Diện tích khu đất: 248m2
- Diện tích xây dựng: 100m2
- Ảnh: GoodShot – Chấn Thạch
Bối cảnh: Chúng tôi tiếp nhận dự án này với một đề bài đầy cảm xúc: thiết kế không gian sống cho một người mẹ lớn tuổi trên mảnh đất 263m2 nơi gia đình đã gắn bó hơn nửa thế kỷ. Với ngân sách xây dựng khiêm tốn, thách thức đặt ra không phải là tạo nên một biểu tượng kiến trúc hào nhoáng, mà là tìm kiếm sự bình an trong tâm hồn người ở. Lấy cảm hứng từ tuyên ngôn của Luis Barragan Pritzker Prize 1980: “Bất kỳ kiến trúc nào không đem lại cảm giác bình yên đều là một sai lầm”, chúng tôi xác định một không gian sống cho người mẹ lớn tuổi với mong muốn: Sự an toàn, tiện nghi và cảm giác thuộc về.
Hình khối và Giải pháp Vi khí hậu Về mặt hình thức, công trình theo đuổi tính giản lược của Kiến trúc Chủ nghĩa Hiện đại với mặt bằng hình vuông gọn gàng. Chúng tôi đã sử dụng các giải pháp thiết kế kiến trúc cơ bản và đơn giản nhất như sơn trắng, kính trong, đá marble và gỗ tự nhiên để tạo nên một phông nền tĩnh lặng, không vướng bận thị giác. Đồng thời tập trung giải quyết tốt các vấn đề kỹ thuật xây dựng và cơ điện, Điểm nhấn của thiết kế nằm ở giải pháp xử lý vi khí hậu thụ động, giúp ngôi nhà tự “thở” giữa khí hậu nhiệt đới. Hệ thống bẫy gió trên mái kết hợp với các miệng gió trần và lam thông gió ở vách tạo nên cơ chế đối lưu không khí liên tục, đẩy nhiệt lượng dưới sàn mái bê tông ra ngoài và cấp khí tươi vào trong. Bên cạnh đó, mái hiên vươn rộng đóng vai trò vùng đệm chuyển tiếp, xóa mờ ranh giới giữa nhà và vườn, khuyến khích gia chủ tương tác với thiên nhiên mỗi ngày.
Nỗ lực được hồi đáp: Gần một năm sau khi căn nhà hoàn thiện, chúng tôi có dịp quay lại thăm và chụp ảnh công trình, bác chủ nhà chia sẻ bác đã có giấc ngủ ngon một mình sau hàng thập niên không thể ngủ thẳng giấc và cần có người ngủ chung. Bác cho biết là mình hạnh phúc vì có cảm giác bình an. Đây là niềm vui lớn nhất của chúng tôi.