VILLA M | MAISON CLOU

THÔNG TIN DỰ ÁN: 

  • Tên công trình: Villa M
  • Địa chỉ: Dương Kinh, Hải Phòng
  • Đơn vị thiết kế: Maison CL.ou
  • KTS chủ trì: KTS Vũ Mạnh Cường
  • Năm thiết kế: 2020
  • Năm hoàn thành: 2023

Villa M được hình thành từ sức hút đặc biệt của một khu đất ven sông, cách xa trung tâm thành phố, nơi cảnh quan và không khí yên tĩnh tạo nên sự quyến rũ riêng biệt. Chủ đầu tư mong muốn biến nơi này thành một không gian sống vừa hiện đại, vừa gắn kết với thiên nhiên.

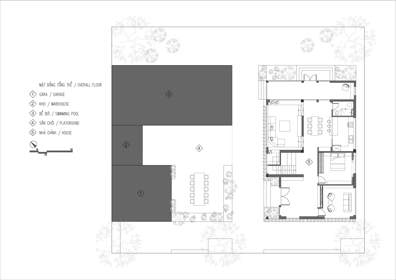
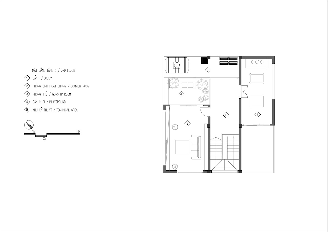
Cấu trúc công trình gồm một khối nhà chính nổi bật, kết nối với hai khối phụ trợ nhỏ hơn, bao quanh sân vườn trung tâm. Sân vườn được tổ chức như một quảng trường thu nhỏ, nơi gia đình có thể tụ họp, thưởng trà và tận hưởng không khí trong lành. Các khối phụ trợ đảm nhiệm chức năng gara, kho, bể bơi, đồng thời trên mái còn có khu vực đặt kính viễn vọng để ngắm sao, tạo nên trải nghiệm sống phong phú.

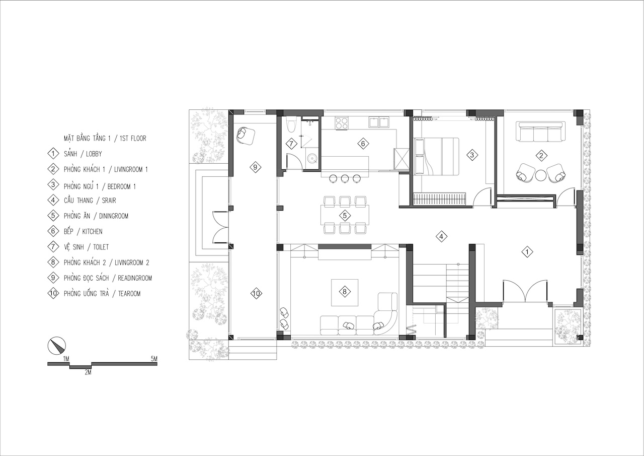
Tiền sảnh được xem như bộ mặt của ngôi nhà, là điểm chuyển tiếp giữa bên ngoài và bên trong. Tại đây, một bức tranh nghệ thuật được bố trí như món trang sức, vừa tôn lên vẻ đẹp không gian, vừa tạo dấu ấn thị giác mạnh mẽ cho khách ghé thăm.

Phòng khách được hạ cốt nền thấp hơn phòng ăn, mở rộng tầm nhìn ra cảnh quan bên ngoài qua hệ cửa sổ lớn. Nội thất sử dụng tông màu trầm, kết hợp lò sưởi đá thiết kế riêng, mang lại cảm giác ấm cúng và cá tính. Phòng ăn được làm mới bằng ghế bọc da và bàn epoxy, phối hợp cùng chi tiết đinh tán và console, tạo nên không gian sang trọng, nổi bật.