Q-APARTMENT | QiD STUDIO

THÔNG TIN DỰ ÁN: 

  • Tên công trình: Q-apartment
  • Địa chỉ: Chung cư Ascent, Phường Thảo Điền, TP. Thủ Đức
  • Diện tích sàn: 110m²
  • KTS chủ trì: Nguyễn Đình Quí Dương, Phùng Đăng Khoa
  • Đơn vị thiết kế & thi công: QiD studio
  • Năm hoàn thành: 2023
  • Nhiếp ảnh: Quang Trần

Giữa lòng Thảo Điền, nơi đô thị hóa lan nhanh và các không gian sống ngày càng chật hẹp, vẫn còn những điểm lặng hiếm hoi. Đó là căn hộ 110m² ẩn mình trên tầng cao của một block chung cư cũ. Nơi từng là văn phòng nay được cải tạo thành một tổ ấm tựa như “xưởng ký ức” đúng nghĩa: nơi vật liệu thô mộc, ánh sáng trầm lặng và nghệ thuật trừu tượng cùng góp giọng kể một câu chuyện cá nhân, chân thực và đầy cảm xúc.

Chủ nhân căn hộ là một người làm việc lâu năm trong ngành nội thất. Mục tiêu của anh là biến căn hộ này từ một văn phòng cũ thành không gian sống và nghỉ ngơi độc nhất, vừa là nơi ở, vừa là “sân chơi” cho tư duy sáng tạo về vật liệu và thiết kế. Anh cùng nhóm thiết kế muốn giữ lại phần lớn kết cấu thô của căn hộ, sử dụng những vật liệu nguyên bản, thậm chí đã mang dấu vết thời gian để lấp đầy nó. Đây không chỉ là một công trình cải tạo thông thường, mà còn lại là một thử nghiệm thiết kế giàu tính bản thể, nơi ký ức cá nhân, cảm xúc vật liệu và sự tinh tế trong tổ chức không gian cùng gặp nhau.

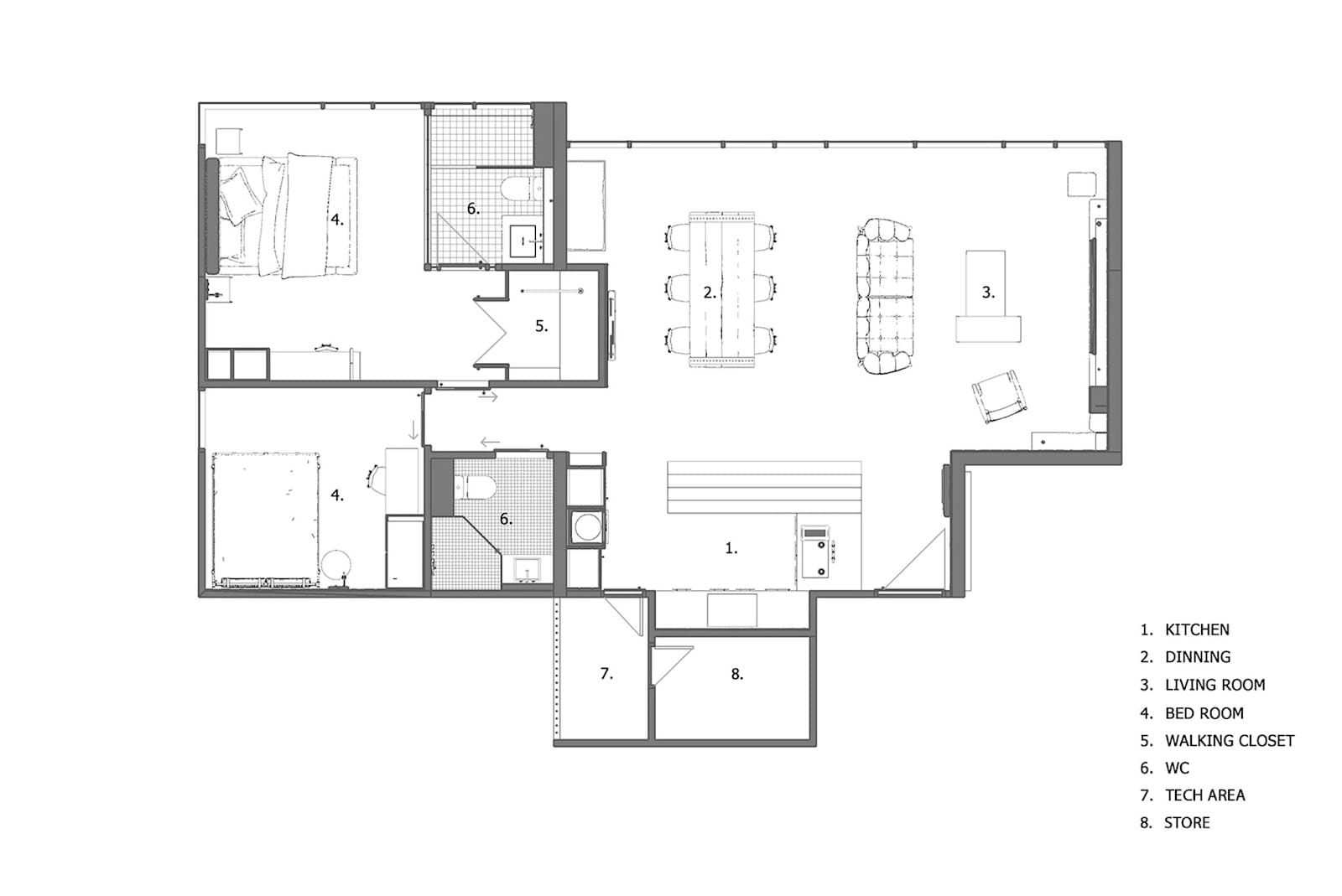
Khối lượng cải tạo không lớn, nhưng tư duy tổ chức không gian rất đáng chú ý. Mặt bằng được thiết kế mở hoàn toàn, phá bỏ các vách chia cũ và tổ chức lại công năng theo hướng dòng chảy, sử dụng ánh sáng, cao độ sàn và chuyển tiếp vật liệu để phân định các khu vực. Không gian bếp rộng vừa đủ với một đảo bếp lớn từ thép đen và gỗ tái chế, là điểm tựa trung tâm của cả căn hộ. Tại đây, mọi hoạt động sinh hoạt, tiếp khách, nghỉ ngơi hay thậm chí làm việc đều có thể diễn ra linh hoạt.

Căn hộ được xử lý như một xưởng thủ công, mọi vật liệu được trở về với bản chất của nó: gạch trần không trát, trần bê tông để thô nguyên vết ván khuôn, sàn bê tông mài giữ lại cả những vết xước nhẹ. Hệ thống ống thép điện nổi, nội thất từ gỗ nguyên khối, kim loại gỉ và da thật tạo nên một bảng vật liệu đầy chất xưởng, nơi sự mộc mạc được lựa chọn để lột tả chiều sâu và mang tính kể chuyện. Điều đặc biệt nằm ở cách vật liệu được giữ lại trung thực, không tô điểm, không “làm đẹp” theo thị hiếu. Chúng hiện diện như chúng vốn có, không hoàn hảo nhưng có ký ức.

Căn hộ không được chiếu sáng kiểu chiếu điểm hay kỹ thuật phô trương. Thay vào đó, ánh sáng tự nhiên được lọc qua lớp kính sọc, tạo nên những vệt bóng mờ ảo, liên tục thay đổi theo thời gian trong ngày. Buổi tối, các giải pháp ánh sáng gián tiếp từ khe trần, từ hắt tường sẽ tái hiện một không gian nội tâm và giàu cảm xúc, gần như điện ảnh. Ánh sáng ở đây gợi nên một không gian suy tưởng, nơi người ta có thể sống chậm lại, cảm nhận và ghi nhớ.

Điều khiến căn hộ này trở nên đặc biệt không nằm ở tính mới lạ, mà ở sự tối giản giàu chiều sâu, một thái độ thiết kế dứt khoát, không thoả hiệp với xu hướng hay thị hiếu. Căn hộ không hoàn hảo theo chuẩn thẩm mỹ phổ thông, nhưng lại rất “đúng” với tinh thần của người ở, đúng với ngôn ngữ của không gian, và đúng với triết lý thiết kế lấy vật liệu làm trung tâm.