LISON HOUSE | DIM STUDIO

THÔNG TIN DỰ ÁN: 

  • Tên công trình: Lison House
  • Địa chỉ: An Khánh, Hoài Đức, Hà Nội
  • Diện tích công trình: 480
  • KTS chủ trì: Hoàng Công Long, Nguyễn Hải Nam
  • Đơn vị thiết kế: DIM Studio
  • Đơn vị thi công: DIM Studio
  • Năm hoàn thành: 2024

Lison House ra đời từ mong muốn thay đổi lối sống của gia đình anh Sơn sau 15 năm ở căn hộ chung cư trung tâm Hà Nội. Chuyển về nhà liền kề ngoại thành, anh muốn tạo môi trường sống gần gũi thiên nhiên hơn, nơi được đánh thức bởi ánh nắng qua cửa sổ, nghe tiếng chim hót, cùng con nô đùa trong vườn và thoảng mùi bếp núc của gia đình. Đây là khát khao trở về với nhịp sống chậm rãi và sự kết nối thật sự giữa các thành viên.

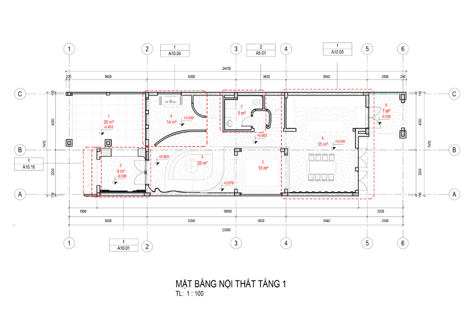
Thiết kế tập trung vào không gian sinh hoạt chung tầng 1 với bố cục mở, các khu vực kết nối liền mạch không vách ngăn cứng. Phòng khách – bếp – ăn được bố trí liên thông, tạo môi trường cho các hoạt động gia đình diễn ra đồng thời: bố xem bóng đá trên sofa, trẻ con nằm nghịch trên ghế, mẹ nấu ăn trong bếp tất cả vẫn cảm nhận được sự hiện diện của nhau. Đây chính là không gian “cùng nhau” mà vẫn “tự do”, nơi mỗi người có hoạt động riêng nhưng không bị tách biệt.

Kết nối với sân vườn được ưu tiên thông qua cửa sổ lớn và cửa vòm ra hiên.Cho phép ánh sáng và không khí lưu thông tự nhiên, đưa thiên nhiên vào từng góc nhà.

Tone màu kem – trắng – vàng tạo không gian ấm áp và tinh tế. Tường sơn be nhạt kết hợp sàn gỗ tự nhiên, tạo nền trung tính nhưng không lạnh lẽo. Kết cấu vòm xuất hiện ở cửa đi và hốc tường, vừa tạo điểm nhấn kiến trúc vừa làm mềm không gian, xóa đi sự cứng nhắc của các góc vuông. Đèn thả trắng ấm trên bàn ăn tạo tiêu điểm mềm mại, định nghĩa vùng sinh hoạt mà không cần vách ngăn.

Nội thất theo nguyên tắc tối giản nhưng đầy đủ chức năng.Mỗi món đồ được chọn lọc kỹ đủ để sử dụng thoải mái nhưng không dư thừa, tạo trạng thái cân bằng trong sinh hoạt.

Lison House thể hiện triết lý “vừa vặn mà vẫn đủ đầy” không gian được chăm chút từng chi tiết nhưng không cầu kỳ, đơn giản về hình thức nhưng đầy đủ về cảm xúc. Đây là nơi để gia đình gắn kết, chia sẻ và nạp lại năng lượng an lành sau những mệt mỏi bên ngoài.