THÔNG TIN VỀ CÔNG TRÌNH

  • Tên công trình: HỚP Cafe
  • Địa điểm: TP. Tây Ninh
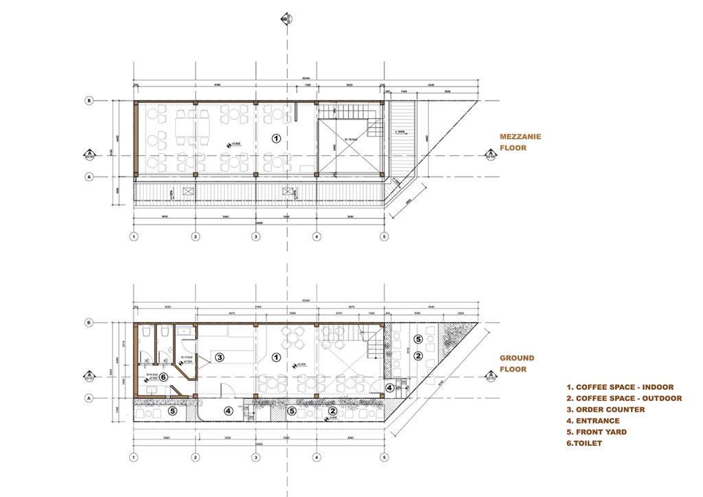
  • Diện tích khu đất: 150m²
  • Diện tích xây dựng: 150m²
  • Diện tích sàn: 150m²
  • Đơn vị thiết kế kiến trúc: Hôm architects
  • Kiến trúc sư chủ trì: Nguyễn Gia Hưng, Nguyễn Chí Tài
  • Đơn vị thi công: Hôm Builder
  • Năm hoàn thành: 2025
  • Chi phí: 1.500.000.000 VND
  • Vật liệu sử dụng: Gạch, gỗ, đá mài

Từ một căn nhà phố cũ kỹ tưởng chừng đã hết thời, đội ngũ Hôm Architects đã biến nơi đây thành điểm đến văn hóa mới, một không gian sống động nhưng vẫn giữ được nét trầm lắng hiếm hoi giữa lòng đô thị.

LẮNG NGHE KHÔNG GIAN CŨ

Khi tiếp cận công trình, các kiến trúc sư Nguyễn Gia Hưng và Nguyễn Chí Tài đã chọn cách bắt đầu bằng việc “lắng nghe” chính nơi này.

Thay vì áp đặt một ngôn ngữ thiết kế hoàn toàn mới, họ đã tiếp cận với sự tôn trọng đối với cấu trúc hiện hữu, dù đó là một căn nhà phố điển hình với không gian rời rạc, thiếu sáng và gần như cạn kiệt sinh khí.

“Chúng tôi nhìn thấy tiềm năng hồi sinh từ chính những hạn chế của không gian cũ”, kiến trúc sư Hưng chia sẻ. Phương pháp này rất phù hợp trong bối cảnh đô thị đương đại – nơi tái sử dụng và cải tạo trở thành xu hướng bền vững hơn so với xây dựng mới hoàn toàn.

ĐỐI THOẠI GIỮA VỎ NGOÀI VÀ NỘI TÂM

Ý tưởng thiết kế của HỚP Cafe không đến từ những viễn cảnh xa vời, mà bắt nguồn từ chính thực trạng của một thành phố hiện đại, nơi con người đôi khi chỉ nhìn nhau qua vẻ bề ngoài.

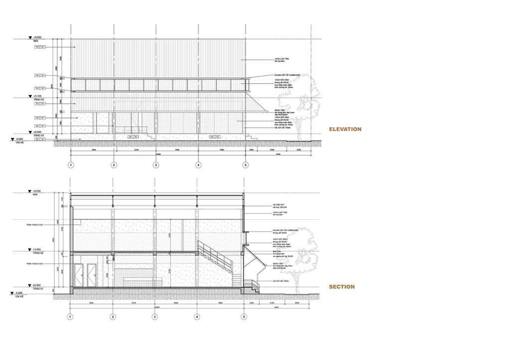
Để phản ánh điều đó, các kiến trúc sư đã giữ lại những mảng tường, cột bê tông thô ráp, kết hợp với lớp tole cứng cáp, lạnh lẽo, tạo nên một lớp vỏ trung tính, tượng trưng cho sự xa cách, nghiêm nghị của đô thị.

Tuy nhiên, đằng sau lớp vỏ ấy là cả một thế giới khác biệt. Không gian bên trong HỚP Cafe được tái cấu trúc hoàn toàn bằng gỗ trầm ấm, vải mềm mại, cùng tông màu nâu và xanh tĩnh lặng. Sự tương phản giữa bên ngoài và bên trong tạo nên một sự thú vị đặc biệt, mời gọi mọi người khám phá những điều ẩn chứa sâu bên trong.

Gỗ, vải, màu nâu trầm, xanh tĩnh và cây xanh được sử dụng một cách khéo léo, tạo nên một không gian không phô trương mà gợi mở, như một tiếng nói thầm thì, một ánh mắt biết nhìn sâu hơn. Ở đó, mọi thứ không còn lạnh lùng như vẻ ngoài, mà trở nên ấm áp, mềm mại và đầy sức sống.

KIẾN TRÚC CHẠM ĐẾN CẢM XÚC

Ánh sáng tự nhiên được thiết kế để len lỏi qua các khe hở kiến trúc, tạo nên những đường viền mềm mại trên bề mặt thô ráp. Các chi tiết nội thất được chọn lọc kỹ lưỡng, không quá nhiều nhưng đủ để tạo cảm giác thân thuộc, như những góc nhỏ trong ngôi nhà thân quen hơn là một không gian thương mại.

HỚP Cafe không chọn cách tách biệt hoàn toàn khỏi con phố. Ngược lại, nó chọn cách “lặng lại” ngay giữa lòng nhịp sống ấy. Đó là một lời mời dịu dàng, kiên nhẫn dành cho những ai muốn tìm chỗ dừng chân.

Kiến trúc sư kỳ vọng rằng, trong “nhịp chậm” được kiến tạo cẩn thận này, mọi người sẽ tìm thấy một khoảng yên. Một khoảng yên đủ để dừng lại thở, đủ để ở lại lâu hơn với tách cà phê, và quan trọng hơn, đủ để thấy nhau, hiểu nhau rõ hơn.

Biên tập: Thu Trang