HIDEN HOUSE | VIETLINE INTERIOR DESIGN

THÔNG TIN DỰ ÁN: 

Dự án được tiếp cận theo tinh thần Soulful Modernism: hiện đại nhưng mềm mại, ưu tiên cảm xúc sống và sự thoải mái hơn việc phô diễn hình thức. Từng đường nét được giản lược có chủ đích, để ánh sáng tự nhiên và vật liệu ấm lên tiếng.
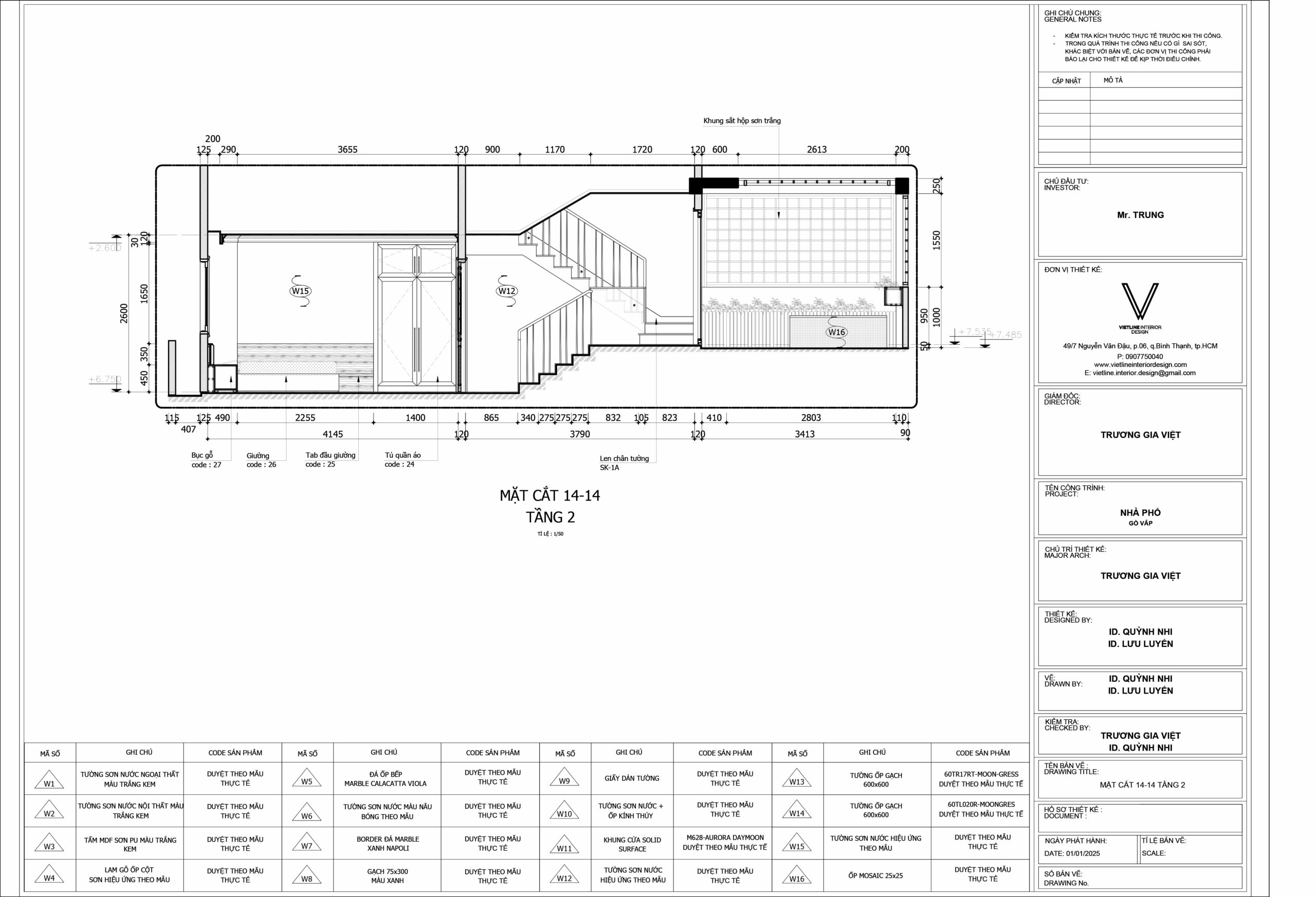
Căn nhà có cấu trúc lệch tầng, vốn là nhược điểm thường thấy ở nhà phố vì dễ tạo cảm giác chia cắt và chật hẹp.
 
Tuy nhiên, thay vì che giấu, kiến trúc sư xem đây là cơ hội. Độ chênh cao độ giữa phòng khách và khu bếp được tổ chức như một nhịp chuyển không gian rất tự nhiên: chỉ vài bậc tam cấp nhưng đủ để mở ra một “cảnh quan nội thất” mới, tách nhẹ chức năng mà vẫn liền mạch. Người bước qua đó cảm nhận được sự thay đổi không khí, giống như chuyển chương trong một câu chuyện liền mạch.
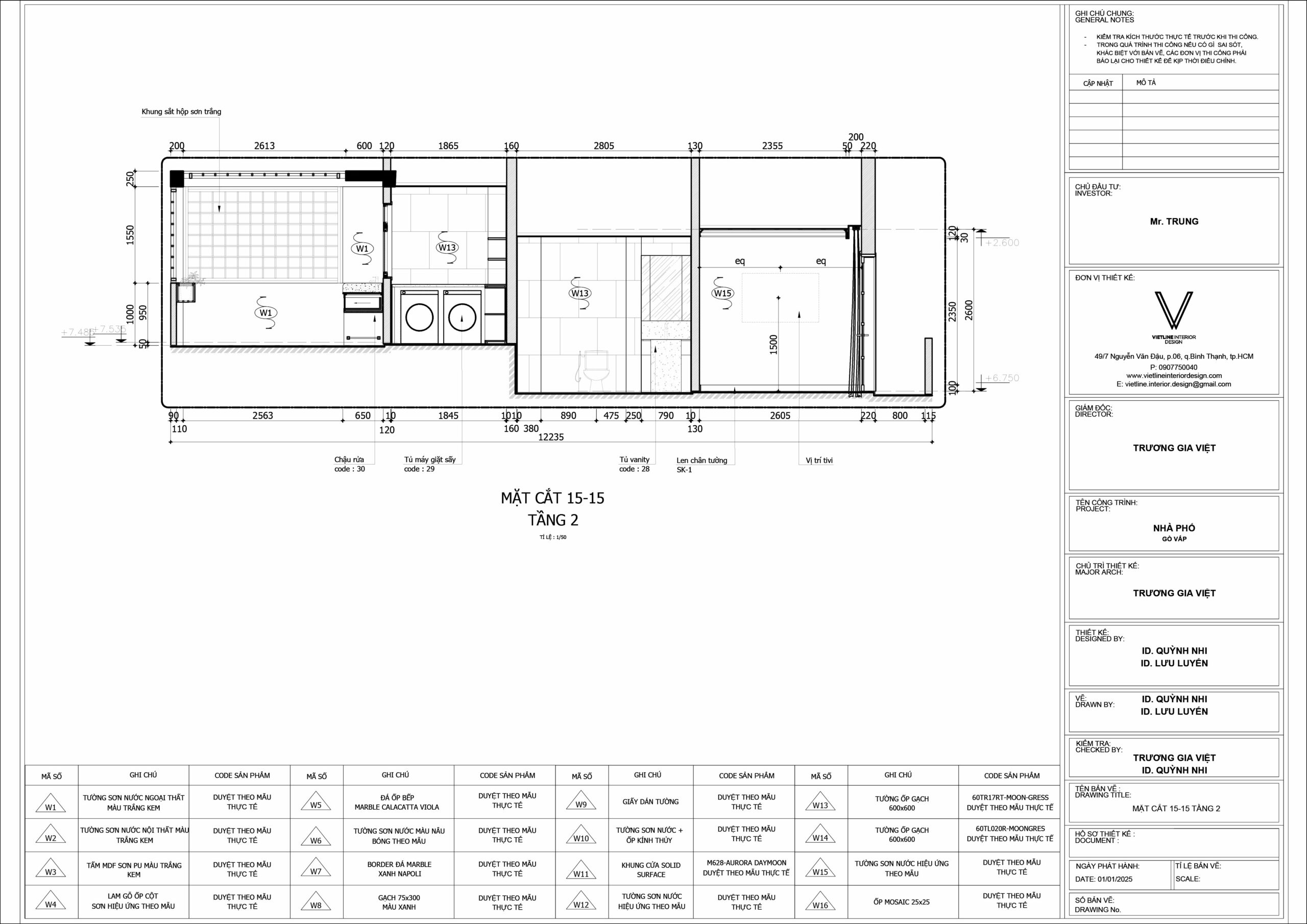
Giếng trời được mở theo trục đứng, đưa ánh sáng phân bổ đều xuống các tầng – một giải pháp giải quyết đúng nhược điểm thiếu sáng của nhà ống Sài Gòn. Ánh sáng không chỉ giúp không gian thoáng và nhẹ hơn, mà còn làm nổi bật bề mặt vật liệu: tường kem dịu, gỗ trầm ấm, đá tự nhiên có độ thở và độ sống.
 
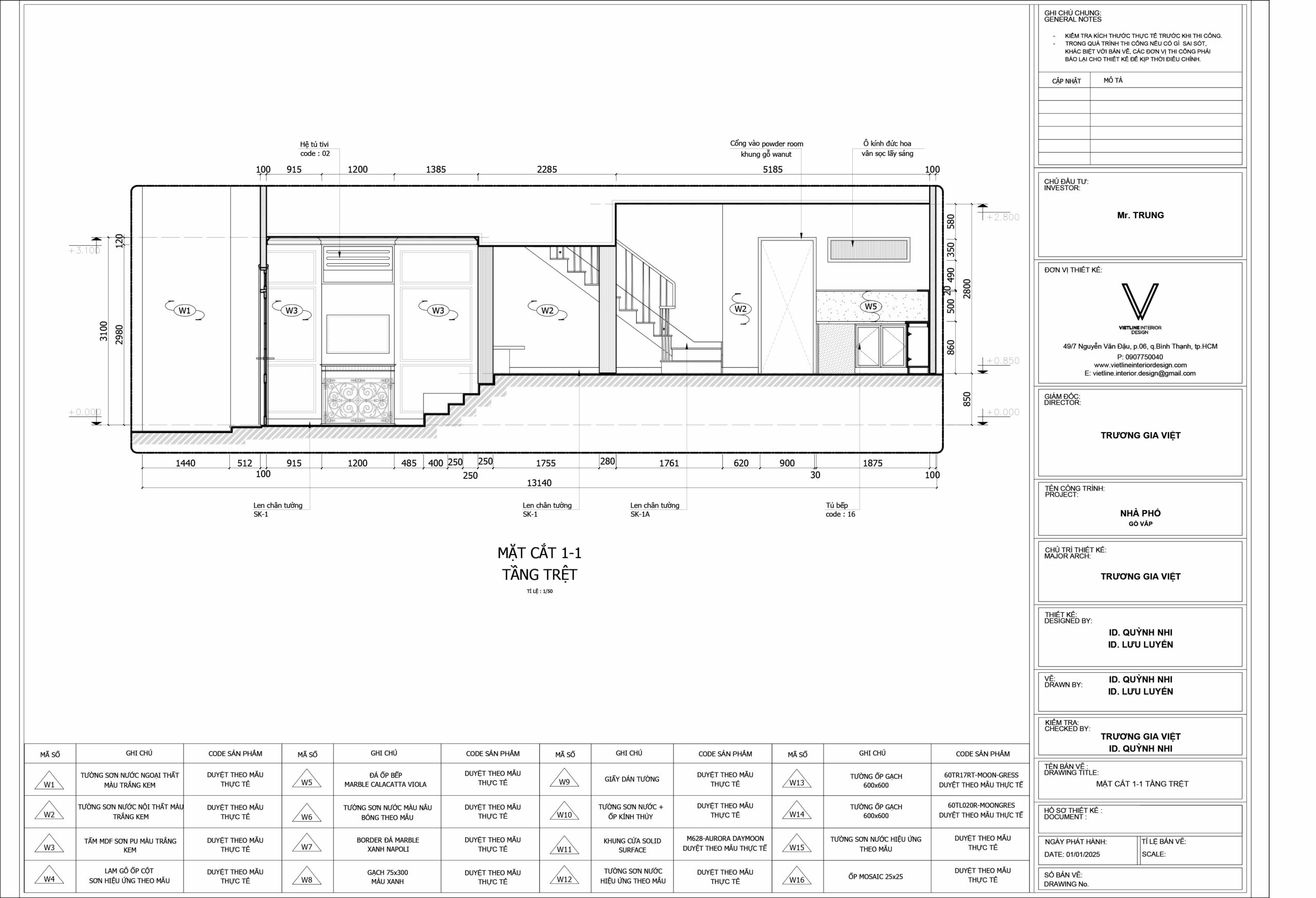
Hệ tủ lớn được sử dụng xuyên suốt, không chỉ để tối ưu lưu trữ mà còn để cân bằng hình khối. Tủ không xem như nội thất rời mà đóng vai trò cấu trúc thị giác: tạo mảng nền vững, cho phép các món nội thất còn lại được thở, giảm sự lộn xộn thường thấy ở nhà phố diện tích nhỏ.
 
Phòng khách là trung tâm kết nối, nơi ánh sáng dịu trải lên sàn gỗ xương cá, sofa nâu trầm và bàn đá travertine. Dưới cầu thang, khu bàn ăn được làm ấm bằng sắc vàng mật ong và bàn đen mờ tạo tương phản tinh tế. Phòng ngủ giữ nhịp lặng, với tông trung tính và một điểm nhấn đỏ sâu để cân bằng cảm xúc.
Tất cả hướng đến một trải nghiệm sống nhẹ nhàng: không gian không cố gây ấn tượng bằng hình thức mà bằng cảm giác. Soulful Modernism ở đây là sự bình tĩnh, chọn lọc và hướng đến chạm vào cảm xúc trước tiên.