HANMINHHANG HOUSE | SLA ARCHITECT

THÔNG TIN DỰ ÁN: 

  • Tên công trình: HanMinhHang House
  • Địa chỉ: Hà Nội, Việt Nam
  • Diện tích xây dựng: 132m2
  • Đơn vị thiết kế: SLA Architect
  • Năm hoàn thành: 2024
HanMinhHang House thuộc sở hữu của người sáng lập nên thương hiệu thời trang “Xéo Xọ”, mong muốn có một không gian sống mới đầy đủ công năng và phải mang chất thời trang rõ nét. Căn nhà vốn đã được xây từ nhiều năm trước, có lợi thế về diện tích so với các công trình lân cận, đặc biệt là khoảng sân phía trước rộng rãi hướng Nam, một yếu tố vi khí hậu lý tưởng nhưng chưa được khai thác triệt để.
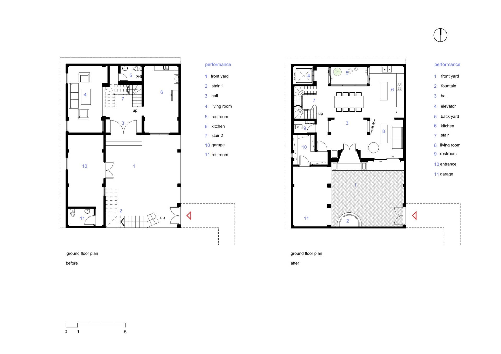
Tầng trệt được xem là tầng giao tiếp chính, vừa là nơi tiếp khách vừa là không gian sinh hoạt chung. Lấy lợi thế khoảng sân rộng rãi, nhóm thiết kế tạo ra nhiều hơn một lối vào, tựa như cho các công trình “biệt thự” chứ không phải “nhà ống truyền thống”. Khách có thể đi từ sảnh chính, còn gia chủ thì đi từ gara, qua không gian đệm gồm phòng thay giày, restroom, tạo nên một chu trình sinh hoạt rõ ràng, thuận tiện, sạch sẽ và riêng tư.
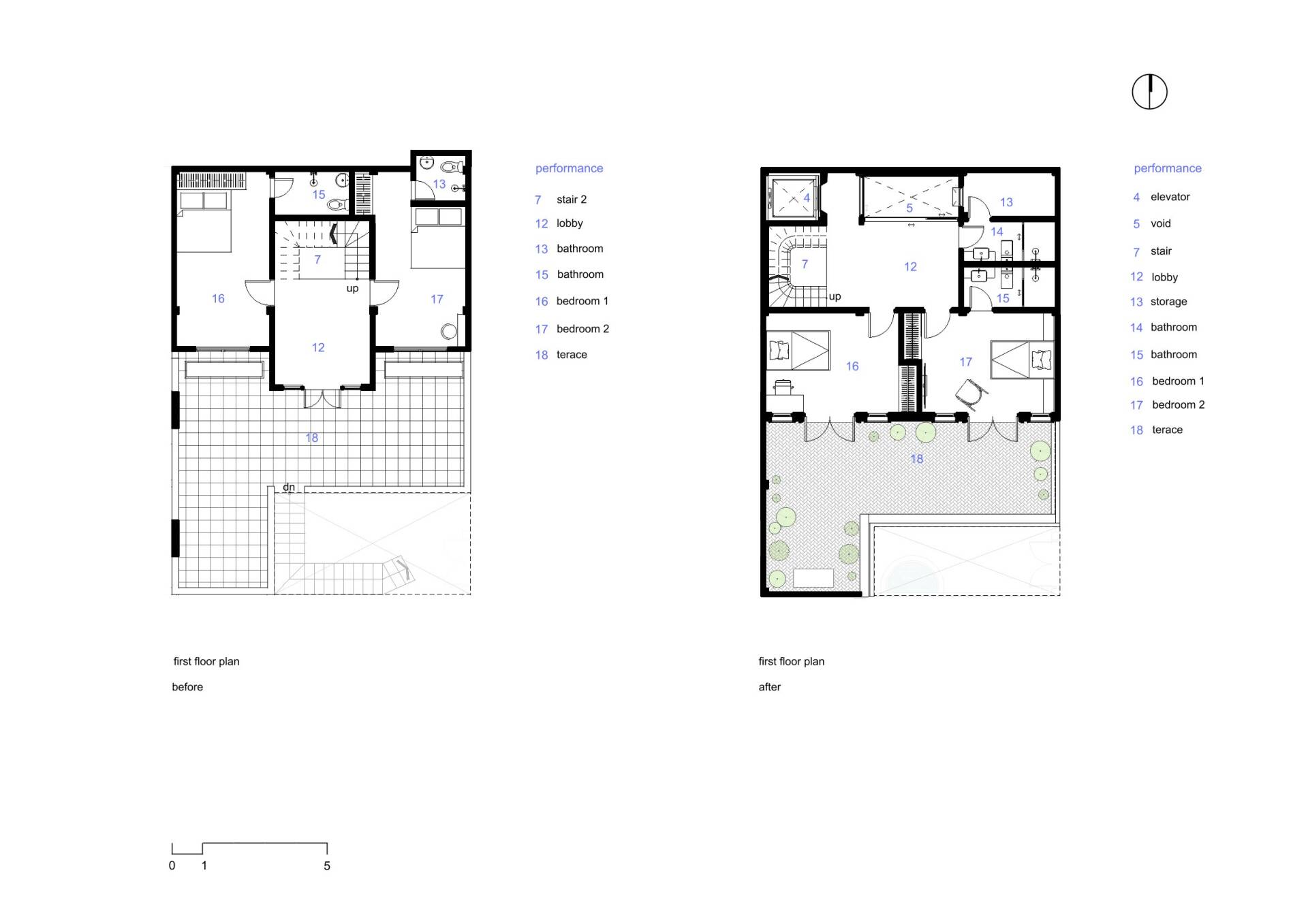
Phòng khách liên thông với bếp và bàn ăn, tạo cảm giác mở rộng. Hệ lưới cột cũ giới hạn về mặt tổ chức không gian nay đã được xử lý bằng cách sử dụng vật liệu và ánh sáng để tăng chiều sâu và độ thoáng. Giếng trời được bố trí ở cuối nhà là điểm nhấn ánh sáng tự nhiên, mang lại cảm giác thư giãn, trái ngược hoàn toàn với hiện trạng cũ. Tầng 1 gồm phòng ngủ cho ông và con gái, khoảng sân phía trước là nơi có thể thư giãn, chăm cây, hoặc đơn giản là hít thở không khí trong lành.
Tầng 2 được tổ chức như một master suite với đầy đủ chức năng: làm việc, ngủ, thay đồ và phòng tắm. Mỗi khu vực đều được tiếp xúc trực tiếp với ánh sáng tự nhiên, nhấn mạnh triết lý “ánh sáng là chất liệu không thể thiếu trong kiến trúc”. Tầng 3 là phòng dành cho khách, phòng giặt và khu thờ. Các không gian được bố trí gọn gàng nhưng vẫn đảm bảo tính riêng tư và tiện nghi.
Vì làm việc trong ngành thời trang nên chủ nhà rất tinh tế trong cách chọn lựa vật liệu hoàn thiện. Gạch lát sân, thiết bị vệ sinh, hệ đèn trang trí, màu sơn tường đều là “sân khấu” để thể hiện gu thẩm mỹ và phong cách cá nhân. Điều này đòi hỏi kiến trúc sư không chỉ thiết kế tốt về công năng mà còn có sự đồng điệu với khách hàng ở mặt cảm xúc thẩm mỹ.